Maison neuve à
Les Aix-d'Angillon (18220) Référence : DP2262075_9

Prix du projet : Maison avec Terrain

prix 223 000 €

  • 6 pièces
  • 4 chambres
  • Surface maison 109 m2

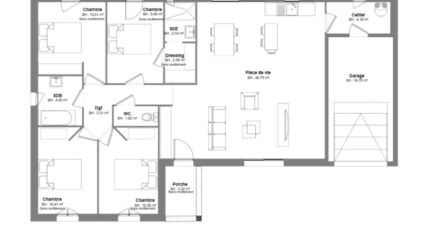
Maison de 6 pièces (109 m²) en vente aux Aix-d'Angillon
MAISON 6 PIÈCES NEUVE - PROCHE DE BOURGES
À vendre : localisée à quelques kilomètres de Bourges, aux Aix-d'Angillon (18220), nous sommes ravis de vous proposer cette maison de 6 pièces de plain-pied de 109 m².
Conçue de plain-pied, elle compte quatre chambres, une cuisine et deux salles de bains. Cette maison est neuve.
Le terrain de la propriété s'étend sur 980 m².
On trouve le Groupe Scolaire Claude Leloup et l'École Élémentaire Groupe Scolaire Claude Leloup à moins de 10 minutes à pied et une structure d'accueil pour les tout-petits. Il y a un accès à la nationale N142 à 18 km. Il y a une bibliothèque, quatre commerces, deux boulangeries, un supermarché, une épicerie et un bureau de poste à quelques minutes à peine.
Elle est à vendre pour la somme de 223 000 €.
Contactez David POUPET (tél : 02-48-50-26-25) pour toute question sur la maison.

Mentions légales

Terrain proposé par un partenaire foncier selon disponibilités et autorisation de publicité au prix de 30 000 €. Hors droit d'enregistrement et frais de notaire. Maison proposée, avec un contrat de construction de maison individuelle, dans le cadre de la loi du 19/12/1990, au prix de 193 000 € (Hors branchements et raccordements, papiers peints, peintures, revêtement de sol dans les chambres, qui sont chiffrés dans les travaux qui restent à charge du client. Tarif modifiable sans préavis). Étiquette énergie : A. Différents modèles disponibles pour ce terrain. Assurances et garanties du constructeur comprises (RC professionnelle, décennale, dommage ouvrage).

Contactez l'agence de Bourges

02 48 50 26 25

    * Champs obligatoires

    Vos informations sont traitées par HEXAOM et transmises à un conseiller commercial qui vous contactera afin de répondre à votre demande. Les plans et images présentés sur notre site sont la propriété d’HEXAOM et ne peuvent pas être reproduits sans son accord. Pour retrouver notre politique de protection des données personnelles et exercer vos droits conformément à la « loi informatique et liberté » cliquez-ici.