Maison neuve à
Les Chapelles-Bourbon (77610) Référence : DC2488289_1

Prix du projet : Maison avec Terrain

prix 356 516 €

  • 5 pièces
  • 3 chambres
  • Surface maison 90 m2

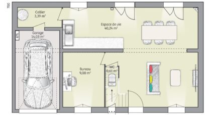
VENTE d'une maison T5 (90 m²) aux Chapelles-Bourbon
MAISON 5 PIÈCES NEUVE - PROCHE DE CRÉTEIL
À vendre : à quelques minutes du Transilien P (gare de Marles-en-Brie, 35 min de Paris), nous vous proposons aux Chapelles-Bourbon (77610), cette maison de 5 pièces de 90 m².
Cette maison comporte 2 niveaux. Elle compte trois chambres, une cuisine et une salle de bains. La maison est neuve.
Le terrain de la propriété s'étend sur 322 m².
L'École Primaire Haoüis de Garlande est implantée à moins de 10 minutes à pied. Côté transports, on trouve la ligne de RER E (Tournan) ainsi que quatre gares à moins de 10 minutes en voiture. Il y a un tennis et une bibliothèque à proximité.
Son prix de vente est de 356 516 €.
N'hésitez pas à prendre contact avec David CORDIER (tél : 06-10-79-38-15) pour tout renseignement sur cette maison.

Annonce proposée par un Agent Commercial Partenaire.

Mentions légales

Terrain proposé par un partenaire foncier selon disponibilités et autorisation de publicité au prix de 136 000 €. Hors droit d'enregistrement et frais de notaire. Terrain + Maison proposés au prix de 356 516 € (Hors branchements et raccordements, papiers peints, peintures, revêtement de sol dans les chambres. Tarif modifiable sans préavis). Etiquette énergie : A. Différents modèles disponibles pour ce terrain. Assurances et garanties du constructeur (RC professionnelle, décennale, dommage ouvrage, garantie de remboursement de l'acompte, livraison à prix et délai convenu) : https://www.maisons-france-confort.fr/mentions-legales/. HEXAOM Services est enregistré auprès de l'ORIAS en tant que Courtier en financement, Niveau 1, sous le numéro 14001345.

Contactez l'agence de Melun

01 64 14 43 20

    * Champs obligatoires

    Vos informations sont traitées par HEXAOM et transmises à un conseiller commercial qui vous contactera afin de répondre à votre demande. Les plans et images présentés sur notre site sont la propriété d’HEXAOM et ne peuvent pas être reproduits sans son accord. Pour retrouver notre politique de protection des données personnelles et exercer vos droits conformément à la « loi informatique et liberté » cliquez-ici.