Maison neuve à
Les Écrennes
(77820) Référence :
DC2488154_2
Prix du projet : Maison avec Terrain
prix 313 505 €
- 5 pièces
- 3 chambres
- Surface maison 90 m2
Les Écrennes : maison de 5 pièces (90 m²) en vente
PROCHE DE MELUN - MAISON 5 PIÈCES NEUVE
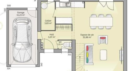
En vente : située à deux pas de Melun, nous sommes ravis de vous proposer aux Écrennes (77820), cette maison de 5 pièces de 90 m² et de 324 m² de terrain. Elle est composée de trois chambres, d'une cuisine et d'une salle de bains.
Cette maison compte 2 niveaux. Elle est neuve.
Il y a une école primaire dans le quartier. Côté transports, on trouve deux gares (Fontaine-le-Port et Héricy) à moins de 10 minutes en voiture. Il y a un tennis à proximité du bien.
Son prix de vente est de 313 505 €.
Prenez contact avec David CORDIER (tél : 06-10-79-38-15) pour toute question sur cette maison, sur les modalités de vente ou sur les démarches à suivre. Maisons France Confort Melun vous accompagne à toutes les étapes de votre projet et dans tous vos projets immobiliers.
Annonce proposée par un Agent Commercial Partenaire.
Mentions légales
Terrain proposé par un partenaire foncier selon disponibilités et autorisation de publicité au prix de 100 900 €. Hors droit d'enregistrement et frais de notaire. Terrain + Maison proposés au prix de 313 505 € (Hors branchements et raccordements, papiers peints, peintures, revêtement de sol dans les chambres. Tarif modifiable sans préavis). Etiquette énergie : A. Différents modèles disponibles pour ce terrain. Assurances et garanties du constructeur (RC professionnelle, décennale, dommage ouvrage, garantie de remboursement de l'acompte, livraison à prix et délai convenu) : https://www.maisons-france-confort.fr/mentions-legales/. HEXAOM Services est enregistré auprès de l'ORIAS en tant que Courtier en financement, Niveau 1, sous le numéro 14001345.Agence Maisons France Confort de Melun (77000)
- Téléphone :
- 01 64 14 43 20
- Adressse :
- 3 route de Nangis
77000 Melun, France