Maison neuve à
Les Mathes
(17570) Référence :
CR2459835_3
Prix du projet : Maison avec Terrain
prix 275 878 €
- 3 pièces
- 2 chambres
- Surface maison 69 m2
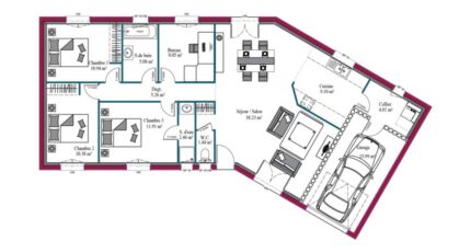
Nous vous proposons votre projet de construction d'une maison de plain pied de 107 m2.
Le coin nuit se compose de 3 chambres, dont une suite parentale avec salle d'eau et dressing, une salle d'eau et WC séparés.
La pièce de vie offre une triple expositions pour une grande luminosité.
Pour votre confort, le chauffage est réversible, à réglage individuel pièce par pièce.
Le prix comprend le terrain, les frais de notaire, et la construction.
Hors branchements et raccordements.
Contact et renseignements:
Cédric RÊTEUX O7 67 07 20 68
Mentions légales
Idée de réalisation en modèle prêt à décorer sur l'un de nos terrains partenaires, sous réserve de disponibilités. Voir détails en agence.Agence Maisons de la Côte Atlantique de Rochefort (17300)
- Téléphone :
- 05 46 88 71 67
- Adressse :
- 95 rue des pêcheurs d'Islande
17300 Rochefort, France
