Maison neuve à
Les Veys
(50500) Référence :
JS2441626_7
Prix du projet : Maison avec Terrain
prix 215 120 €
- 7 pièces
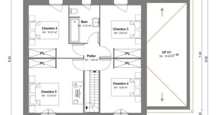
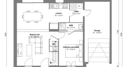
- 5 chambres
- Surface maison 102 m2
VENTE : maison de 7 pièces (102 m²) aux Veys
Idéalement située - À découvrir aux Veys (50500) : maison neuve 7 pièces à vendre, 2 niveaux, 102 m² sur 568 m² de terrain. Son intérieur est composé de cinq chambres, d'une cuisine et de deux salles de bains.
À proximité : gare (Carentan), établissements scolaires, marchés, tennis, port de plaisance, bassins de natation, bibliothèques, commerces, boulangeries, supermarchés, épiceries et boucheries-charcuteries.
Cette maison de 7 pièces est à vendre pour la somme de 215 120 €.
Contactez Emilie HUE (tél : 06-29-81-46-66) pour obtenir de plus amples informations sur la maison. Concrétisez vos projets immobiliers avec Maisons France Confort Bayeux.
👉 Plusieurs terrains sont également disponibles, de 396 m² à 568 m², à partir de 33 480 €.
Annonce proposée par un Agent Commercial Partenaire.
Mentions légales
Terrain proposé par un partenaire foncier selon disponibilités et autorisation de publicité au prix de 45 120 €. Hors droit d'enregistrement et frais de notaire. Terrain + Maison proposés au prix de 215 120 € (Hors branchements et raccordements, papiers peints, peintures, revêtement de sol dans les chambres. Tarif modifiable sans préavis). Etiquette énergie : A. Différents modèles disponibles pour ce terrain. Assurances et garanties du constructeur (RC professionnelle, décennale, dommage ouvrage, garantie de remboursement de l'acompte, livraison à prix et délai convenu) : https://www.maisons-france-confort.fr/mentions-legales/. HEXAOM Services est enregistré auprès de l'ORIAS en tant que Courtier en financement, Niveau 1, sous le numéro 14001345.Agence Maisons France Confort de Bayeux (14400)
- Téléphone :
- 02 31 51 20 91
- Adressse :
- 2, rue Saint Loup
14400 Bayeux, France
