Maison neuve à
Les Veys
(50500) Référence :
JS2442191_10
Prix du projet : Maison avec Terrain
prix 201 240 €
- 6 pièces
- 4 chambres
- Surface maison 91 m2
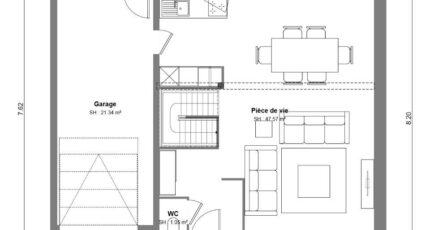
VENTE : maison F6 (91 m²) aux Veys
Idéalement située - Maison neuve 6 pièces en vente aux Veys (50500) avec 2 niveaux, une surface de 91 m² sur un terrain de 436 m². Elle inclut quatre chambres, une cuisine et une salle de bains.
À dix minutes : gare (Carentan), établissements scolaires, marchés, tennis, port de plaisance, bassins de natation, bibliothèques, commerces, boulangeries, supermarchés, boucheries-charcuteries et poissonneries.
Le prix de vente de cette maison de 6 pièces est de 201 240 €.
N'hésitez pas à prendre contact avec Emilie HUE (tél : 06-29-81-46-66) pour obtenir de plus amples informations sur la maison.
👉 Plusieurs terrains sont également disponibles, de 396 m² à 568 m², à partir de 33 480 €.
Annonce proposée par un Agent Commercial Partenaire.
Mentions légales
Terrain proposé par un partenaire foncier selon disponibilités et autorisation de publicité au prix de 36 240 €. Hors droit d'enregistrement et frais de notaire. Terrain + Maison proposés au prix de 201 240 € (Hors branchements et raccordements, papiers peints, peintures, revêtement de sol dans les chambres. Tarif modifiable sans préavis). Etiquette énergie : A. Différents modèles disponibles pour ce terrain. Assurances et garanties du constructeur (RC professionnelle, décennale, dommage ouvrage, garantie de remboursement de l'acompte, livraison à prix et délai convenu) : https://www.maisons-france-confort.fr/mentions-legales/. HEXAOM Services est enregistré auprès de l'ORIAS en tant que Courtier en financement, Niveau 1, sous le numéro 14001345.Agence Maisons France Confort de Bayeux (14400)
- Téléphone :
- 02 31 51 20 91
- Adressse :
- 2, rue Saint Loup
14400 Bayeux, France
