Maison neuve à
Plobannalec-Lesconil (29740) Référence : MD2469949_4

Prix du projet : Maison avec Terrain

prix 308 000 €

  • 4 pièces
  • 3 chambres
  • Surface maison 90 m2

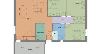
Lesconil : maison T4 (90 m²) en vente
MAISON 4 PIÈCES NEUVE
À vendre : située sur le littoral atlantique, à Lesconil (29740), Maisons de l'Avenir Quimper vous propose cette maison de 4 pièces de plain-pied de 90 m².
Conçue de plain-pied, elle compte trois chambres, une cuisine et une salle de bains.
Elle est proposée à l'achat pour 308 000 €.
Contactez Mathieu DEROUET pour obtenir de plus amples informations sur cette maison, sur les démarches à suivre ou sur les modalités de vente. Concrétisez vos projets immobiliers avec Maisons de l'Avenir Quimper.

Mentions légales

Terrain proposé par un partenaire foncier selon disponibilités et autorisation de publicité au prix de 75 000 €. Hors droit d'enregistrement et frais de notaire. Terrain + Maison proposés au prix de 308 000 € (Hors branchements et raccordements, papiers peints, peintures, revêtement de sol dans les chambres. Tarif modifiable sans préavis). Etiquette énergie : A. Différents modèles disponibles pour ce terrain. Assurances et garanties du constructeur (RC professionnelle, décennale, dommage ouvrage, garantie de remboursement de l'acompte, livraison à prix et délai convenu) : https://www.maisonsdelavenir.com/mentions-legales/.

Contactez l'agence de Quimper

02 98 54 75 20

    * Champs obligatoires

    Vos informations sont traitées par HEXAOM et transmises à un conseiller commercial qui vous contactera afin de répondre à votre demande. Les plans et images présentés sur notre site sont la propriété d’HEXAOM et ne peuvent pas être reproduits sans son accord. Pour retrouver notre politique de protection des données personnelles et exercer vos droits conformément à la « loi informatique et liberté » cliquez-ici.