Maison neuve à
Lesneven (29260) Référence : SA2470070_3

Prix du projet : Maison avec Terrain

prix 293 888 €

  • 4 pièces
  • 3 chambres
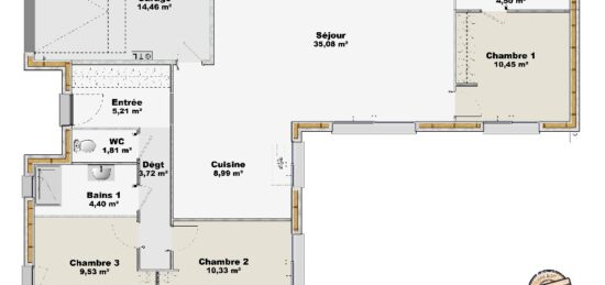
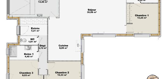
  • Surface maison 94 m2

Lesneven : maison F4 (94 m²) à vendre
PROCHE CENTRE-VILLE - MAISON 4 PIÈCES NEUVE
À quelques kilomètres de la mer et à quelques kilomètres de Brest, nous sommes ravis de vous proposer en vente, proche du centre-ville de Lesneven (29260), cette maison de 4 pièces de 94 m² et de 428 m² de terrain. Son intérieur offre trois chambres, une cuisine et deux salles de bains.
Il s'agit d'une maison de 2 niveaux. Elle est neuve.
Des établissements scolaires de tous types sont implantés à moins de 10 minutes à pied, tout comme une structure d'accueil pour la petite enfance. On trouve un accès à la nationale N12 à 10 km. On trouve de nombreux commerces, deux boucheries-charcuteries, un bureau de poste et une épicerie à quelques minutes. Ne manquez pas le marché Centre-Ville tous les lundis.
Son prix de vente est de 293 888 €.
Prenez contact avec Sami ALKIS pour tout renseignement sur la maison. Concrétisez vos projets immobiliers avec Maisons de l'Avenir Guipavas.

Mentions légales

Terrain proposé par un partenaire foncier selon disponibilités et autorisation de publicité au prix de 55 640 €. Hors droit d'enregistrement et frais de notaire. Terrain + Maison proposés au prix de 293 888 € (Hors branchements et raccordements, papiers peints, peintures, revêtement de sol dans les chambres. Tarif modifiable sans préavis). Etiquette énergie : A. Différents modèles disponibles pour ce terrain. Assurances et garanties du constructeur (RC professionnelle, décennale, dommage ouvrage, garantie de remboursement de l'acompte, livraison à prix et délai convenu) : https://www.maisonsdelavenir.com/mentions-legales/.

Contactez l'agence de Guipavas

02 98 03 90 90

    * Champs obligatoires

    Vos informations sont traitées par HEXAOM et transmises à un conseiller commercial qui vous contactera afin de répondre à votre demande. Les plans et images présentés sur notre site sont la propriété d’HEXAOM et ne peuvent pas être reproduits sans son accord. Pour retrouver notre politique de protection des données personnelles et exercer vos droits conformément à la « loi informatique et liberté » cliquez-ici.