Maison neuve à
Lézignan-la-Cèbe
(34120) Référence :
AB2399954_1
Prix du projet : Maison avec Terrain
prix 196 000 €
- 2 pièces
- 1 chambre
- Surface maison 50 m2
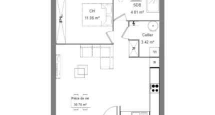
PROJET DE CONSTRUCTION - Lézignan-la-Cèbe : maison de 2 pièces (50 m²)
PROCHE DE BÉZIERS - MAISON 2 PIÈCES
En vente : située à 23 km de la côte méditerranéenne et à deux pas de Béziers, à Lézignan-la-Cèbe (34120), notre agence Maisons France Confort Béziers est heureuse de vous présenter cette maison de 2 pièces de plain-pied de 50 m² et de 447 m² de terrain. Son intérieur inclut une chambre, une cuisine et une salle de bains.
(Carrelage inclus dans toutes les pièces / Raccordements inclus).
L'École Primaire la Salsepareille est implantée à moins de 10 minutes à pied. On trouve un accès à l'autoroute A75 à 2 km. On trouve un tennis, une boulangerie, deux épiceries et une poissonnerie dans les environs.
Elle est à vendre pour la somme de 196 000 €.
Pour plus d'information contacter Anthony BALLESTER : 06-27-21-51-55 Maisons France Confort Béziers pour échanger sur votre projet et réaliser une étude gratuite. (Plan personnalisable). Tous nos ouvrages sont réalisés sur-mesure en fonction de vos attentes et de nos échanges avec vous ainsi que dans le respect de la règlementation RE 2020. Ce projet comporte les garanties suivantes: Contrat de construction CCMI. Dommage/Ouvrage. RC Garantie décennale. Parfaite achèvement. Etude de sol G2. Prix et délais convenu. Garantie de livraison. Garantie financière Pour votre tranquillité nous nous occupons de toutes les formalités administratives.
Mentions légales
Terrain proposé par un partenaire foncier selon disponibilités et autorisation de publicité au prix de 99 000 €. Hors droit d'enregistrement et frais de notaire. Terrain + Maison proposés au prix de 196 000 € (Hors branchements et raccordements, papiers peints, peintures, revêtement de sol dans les chambres. Tarif modifiable sans préavis). Etiquette énergie : A. Différents modèles disponibles pour ce terrain. Assurances et garanties du constructeur (RC professionnelle, décennale, dommage ouvrage, garantie de remboursement de l'acompte, livraison à prix et délai convenu) : https://www.maisons-france-confort.fr/mentions-legales/. HEXAOM Services est enregistré auprès de l'ORIAS en tant que Courtier en financement, Niveau 1, sous le numéro 14001345.Agence Maisons France Confort de Béziers (34500)
- Téléphone :
- 04 67 00 85 60
- Adressse :
- 66, avenue Pierre Verdier
34500 Béziers, France
