Maison neuve à
Lézignan-la-Cèbe
(34120) Référence :
LR2479348_8
Prix du projet : Maison avec Terrain
prix 395 000 €
- 6 pièces
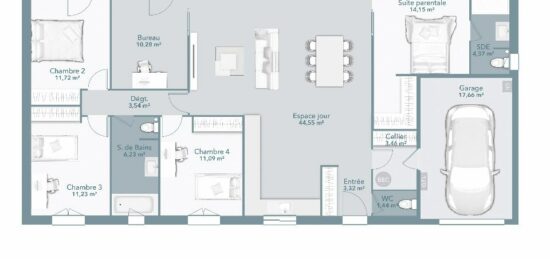
- 4 chambres
- Surface maison 110 m2
VENTE d'une maison T6 (110 m²) à Lézignan-la-Cèbe
EMPLACEMENT PRIVILÉGIÉ - MAISON 6 PIÈCES NEUVE
À vendre à 23 km de la mer Méditerranée et à 23 km de Béziers, Maisons France Confort Béziers vous propose, bénéficiant d'un emplacement privilégié dans Lézignan-la-Cèbe (34120), cette maison de 6 pièces de 110 m². Son intérieur offre quatre chambres, une cuisine et deux salles de bains.
Le terrain du bien s'étend sur 456 m².
Il s'agit d'une maison de 2 niveaux. Elle est neuve.
La maison est située dans un quartier convoité. L'École Primaire la Salsepareille se trouve à moins de 10 minutes à pied. Il y a un accès à l'autoroute A75 à 2 km. Il y a un tennis et une épicerie dans les environs.
Son prix de vente est de 395 000 €.
Prenez contact avec notre agence (RENARD Léo : 06-13-67-09-81) pour toute information sur la propriété et sur les modalités de vente. Maisons France Confort Béziers vous accompagne dans tous vos projets immobiliers et dans toutes vos démarches.
Mentions légales
Terrain proposé par un partenaire foncier selon disponibilités et autorisation de publicité au prix de 114 200 €. Hors droit d'enregistrement et frais de notaire. Terrain + Maison proposés au prix de 395 000 € (Hors branchements et raccordements, papiers peints, peintures, revêtement de sol dans les chambres. Tarif modifiable sans préavis). Etiquette énergie : A. Différents modèles disponibles pour ce terrain. Assurances et garanties du constructeur (RC professionnelle, décennale, dommage ouvrage, garantie de remboursement de l'acompte, livraison à prix et délai convenu) : https://www.maisons-france-confort.fr/mentions-legales/. HEXAOM Services est enregistré auprès de l'ORIAS en tant que Courtier en financement, Niveau 1, sous le numéro 14001345.Agence Maisons France Confort de Béziers (34500)
- Téléphone :
- 04 67 00 85 60
- Adressse :
- 66, avenue Pierre Verdier
34500 Béziers, France