Maison neuve à
L'Huisserie
(53970) Référence :
CF2466730_8
Prix du projet : Maison avec Terrain
prix 391 800 €
- 4 pièces
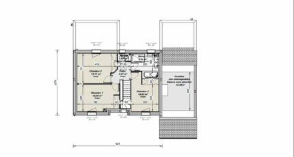
- 3 chambres
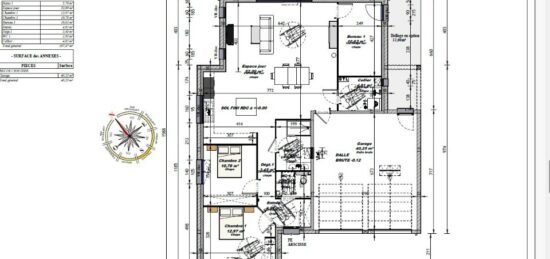
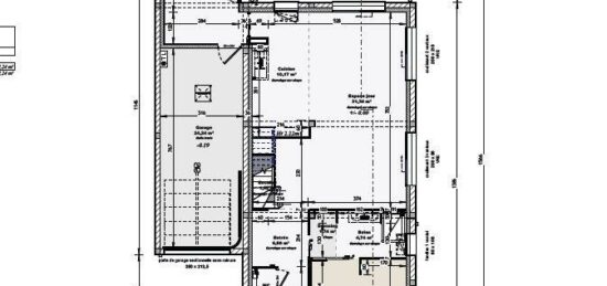
- Surface maison 120 m2
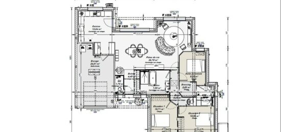
VENTE d'une maison de 4 pièces (120 m²) à L'Huisserie
IDÉALEMENT SITUÉE - MAISON 4 PIÈCES NEUVE
À vendre : à quelques kilomètres de Laval, venez découvrir cette maison de 4 pièces de 120 m² idéalement située dans L'Huisserie (53970). Elle propose trois chambres, une cuisine et une salle de bains.
Le terrain de la propriété est de 849 m².
C'est une maison de 2 niveaux. Elle est neuve.
Cette maison se situe dans un secteur convoité. On trouve des établissements scolaires maternelles et élémentaires à moins de 10 minutes à pied et, comme l'École Primaire Privée Sainte Marie. Niveau transports, il y a la gare Laval à moins de 10 minutes en voiture. Il y a un accès à l'autoroute A81 à 10 km. On trouve un tennis, une bibliothèque, trois commerces, une boucherie-charcuterie et une poissonnerie à proximité.
Son prix de vente est de 391 800 €.
Contactez Claire FERBER (06-61-55-82-88) pour plus d'informations sur la maison, sur les modalités de vente ou sur les démarches à suivre. Maisons France Confort Bonchamp-lès-Laval est là pour vous accompagner à toutes les étapes de votre projet.
Mentions légales
Terrain proposé par un partenaire foncier selon disponibilités et autorisation de publicité au prix de 114 615 €. Hors droit d'enregistrement et frais de notaire. Terrain + Maison proposés au prix de 391 800 € (Hors branchements et raccordements, papiers peints, peintures, revêtement de sol dans les chambres. Tarif modifiable sans préavis). Etiquette énergie : A. Différents modèles disponibles pour ce terrain. Assurances et garanties du constructeur (RC professionnelle, décennale, dommage ouvrage, garantie de remboursement de l'acompte, livraison à prix et délai convenu) : https://www.maisons-france-confort.fr/mentions-legales/. HEXAOM Services est enregistré auprès de l'ORIAS en tant que Courtier en financement, Niveau 1, sous le numéro 14001345.Agence Maisons France Confort de Bonchamp-lès-Laval (53960)
- Téléphone :
- 02 43 67 00 13
- Adressse :
- 1000, Boulevard des Grands Bouessays
53960 Bonchamp-lès-Laval, France
