Maison neuve à
Lignan-sur-Orb (34490) Référence : AB2389531_5

Prix du projet : Maison avec Terrain

prix 306 000 €

  • 4 pièces
  • 3 chambres
  • Surface maison 91 m2

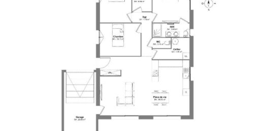
PROJET DE CONSTRUCTION - Maison T4 (91 m²) à Lignan-sur-Orb
IDÉALEMENT SITUÉE - MAISON 4 PIÈCES
En vente à 20 km de la côte méditerranéenne et à deux pas de Béziers, idéalement située dans Lignan-sur-Orb (34490), notre agence Maisons France Confort Béziers est ravie de vous proposer cette maison de 4 pièces de plain-pied de 91 m² et de 368 m² de terrain. Elle compte trois chambres, une cuisine, un cellier et deux salles de bains + GARAGE.
(Carrelage inclus dans toutes les pièces / Raccordements inclus / Gainable compris).
La maison est située dans un quartier attractif. L'École Primaire Publique Jean Moulin se trouve à moins de 10 minutes à pied. Niveau transports en commun, il y a la gare Béziers à moins de 10 minutes en voiture. Les autoroutes A75 et A9 sont accessibles à moins de 10 km. On trouve une bibliothèque, deux tennis, deux boulangeries, quatre commerces, un supermarché, deux boucheries-charcuteries et un bureau de poste dans les environs.
Elle est à vendre pour la somme de 306 000 €.
Pour plus d'information contacter (Anthony BALLESTER : 06-27-21-51-55) Maisons France Confort Béziers pour échanger sur votre projet et réaliser une étude gratuite. (Plan personnalisable). Tous nos ouvrages sont réalisés sur-mesure en fonction de vos attentes et de nos échanges avec vous ainsi que dans le respect de la règlementation RE 2020. Ce projet comporte les garanties suivantes: Contrat de construction CCMI. Dommage/Ouvrage. RC Garantie décennale. Parfaite achèvement. Etude de sol G2. Prix et délais convenu. Garantie de livraison. Garantie financière Pour votre tranquillité nous nous occupons de toutes les formalités administratives.

Mentions légales

Terrain proposé par un partenaire foncier selon disponibilités et autorisation de publicité au prix de 136 000 €. Hors droit d'enregistrement et frais de notaire. Terrain + Maison proposés au prix de 306 000 € (Hors branchements et raccordements, papiers peints, peintures, revêtement de sol dans les chambres. Tarif modifiable sans préavis). Etiquette énergie : A. Différents modèles disponibles pour ce terrain. Assurances et garanties du constructeur (RC professionnelle, décennale, dommage ouvrage, garantie de remboursement de l'acompte, livraison à prix et délai convenu) : https://www.maisons-france-confort.fr/mentions-legales/. HEXAOM Services est enregistré auprès de l'ORIAS en tant que Courtier en financement, Niveau 1, sous le numéro 14001345.

Contactez l'agence de Béziers

04 67 00 85 60

    * Champs obligatoires

    Vos informations sont traitées par HEXAOM et transmises à un conseiller commercial qui vous contactera afin de répondre à votre demande. Les plans et images présentés sur notre site sont la propriété d’HEXAOM et ne peuvent pas être reproduits sans son accord. Pour retrouver notre politique de protection des données personnelles et exercer vos droits conformément à la « loi informatique et liberté » cliquez-ici.