Maison neuve à
Limetz-Villez
(78270) Référence :
MD2389373_2
Prix du projet : Maison avec Terrain
prix 318 000 €
- 5 pièces
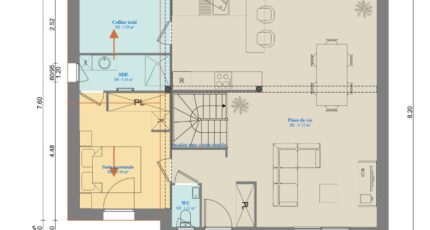
- 4 chambres
- Surface maison 100 m2
Bréval : maison F5 (100 m²) en vente
QUARTIER RECHERCHÉ - MAISON 5 PIÈCES NEUVE
À quelques kilomètres d'Évreux, venez découvrir en vente, située dans un secteur recherché de Bréval (78980), cette maison de 5 pièces de 100 m² et de 433 m² de terrain.
Cette maison compte 2 niveaux. Son intérieur offre quatre chambres, une cuisine et deux salles de bains. La maison est neuve.
La maison se trouve dans un quartier prisé. Le Collège les Nénuphars, l'École Élémentaire les Mille Couleurs et l'École Maternelle la Ribambelle sont implantés à moins de 10 minutes à pied. Niveau transports, on trouve la gare Bréval dans un rayon de 1 km. Il y a un tennis, des commerces, une boulangerie, un supermarché, un bureau de poste et deux boucheries-charcuteries à proximité.
Elle est à vendre pour la somme de 318 000 €.
Contactez notre agence (Murielle DEBART : 06-29-34-36-28) pour obtenir de plus amples renseignements sur la maison. Donnez vie à vos projets immobiliers avec Maisons France Confort Vernon.
Mentions légales
Terrain proposé par un partenaire foncier selon disponibilités et autorisation de publicité au prix de 95 000 €. Hors droit d'enregistrement et frais de notaire. Terrain + Maison proposés au prix de 318 000 € (Hors branchements et raccordements, papiers peints, peintures, revêtement de sol dans les chambres. Tarif modifiable sans préavis). Etiquette énergie : A. Différents modèles disponibles pour ce terrain. Assurances et garanties du constructeur (RC professionnelle, décennale, dommage ouvrage, garantie de remboursement de l'acompte, livraison à prix et délai convenu) : https://www.maisons-france-confort.fr/mentions-legales/. HEXAOM Services est enregistré auprès de l'ORIAS en tant que Courtier en financement, Niveau 1, sous le numéro 14001345.Agence Maisons France Confort de Vernon (27200)
- Téléphone :
- 02 32 51 45 05
- Adressse :
- 38 rue Carnot
27200 Vernon, France
