Maison neuve à
Lirac
(30126) Référence :
LM2446749_3
Prix du projet : Maison avec Terrain
prix 340 000 €
- 6 pièces
- 5 chambres
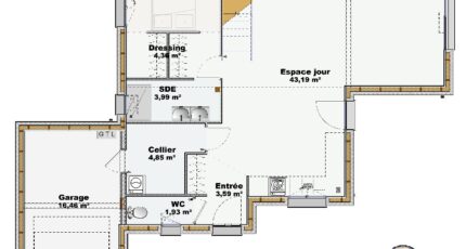
- Surface maison 114 m2
VENTE : maison T6 (114 m²) à Lirac
IDÉALEMENT SITUÉE - MAISON 6 PIÈCES NEUVE
À 16 km d'Avignon, ayez le coup de coeur pour en vente, idéalement située dans Lirac (30126), cette maison de 6 pièces de 114 m². Son intérieur inclut cinq chambres, une cuisine et deux salles de bains.
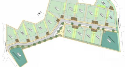
Le terrain du bien est de 499 m².
Il s'agit d'une maison de 2 niveaux. Elle est neuve.
La maison se situe dans un quartier prisé. Une école primaire y est implantée. Il y a un accès à l'autoroute A9 à 4 km. On trouve une boulangerie à proximité de la maison.
Son prix de vente est de 340 000 €.
N'hésitez pas à prendre contact avec notre agence (MONTAGNE Lionel : 06-48-97-08-12) pour plus de renseignements sur la maison, sur les démarches à suivre ou sur les modalités de vente. Maisons France Confort Le Pontet vous accompagne à toutes les étapes de l'achat et dans tous vos projets immobiliers.
Mentions légales
Terrain proposé par un partenaire foncier selon disponibilités et autorisation de publicité au prix de 119 300 €. Hors droit d'enregistrement et frais de notaire. Terrain + Maison proposés au prix de 340 000 € (Hors branchements et raccordements, papiers peints, peintures, revêtement de sol dans les chambres. Tarif modifiable sans préavis). Etiquette énergie : A. Différents modèles disponibles pour ce terrain. Assurances et garanties du constructeur (RC professionnelle, décennale, dommage ouvrage, garantie de remboursement de l'acompte, livraison à prix et délai convenu) : https://www.maisons-france-confort.fr/mentions-legales/. HEXAOM Services est enregistré auprès de l'ORIAS en tant que Courtier en financement, Niveau 1, sous le numéro 14001345.Agence Maisons France Confort de Le Pontet (84130)
- Téléphone :
- 04 90 03 10 91
- Adressse :
- 267 avenue de Fontvert
84130 Le Pontet, France
