Maison neuve à
Locmaria-Plouzané
(29280) Référence :
ET2472274_5
Prix du projet : Maison avec Terrain
prix 460 000 €
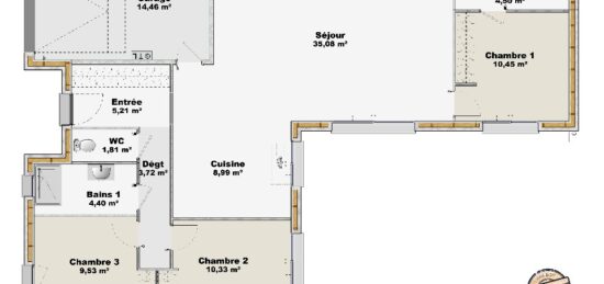
- 4 pièces
- 3 chambres
- Surface maison 120 m2
📢 À vendre : Terrain exceptionnel à Locmaria-Plouzané ! 🌟
Sur la commune prisée de Locmaria-Plouzané, découvrez ce magnifique terrain de 771 m², idéalement situé à deux pas du bourg et issu d'une récente division parcellaire.
💰 Prix attractif : 130 000 €
Ce terrain, rare sur le marché, est une opportunité unique pour construire la maison de vos rêves dans un environnement recherché, alliant tranquillité et proximité des commodités.
🏠 Votre projet clé en main :
Nous proposons les plans d'une maison bois au style moderne, de 120 m², comprenant :
✔️ 3 chambres, dont une suite parentale
✔️ 2 salles d'eau
✔️ Un vaste espace de vie ouvert de plus de 50 m²
✔️ Un garage pour protéger votre voiture ou offrir un espace de stockage
Cette maison est conçue dans le cadre de nos maisons passives Bati Activ, favorisant les gains énergétiques et l'ensoleillement pour un confort optimal. Les plans sont entièrement modifiables selon vos goûts et envies, tant sur l'esthétique que sur l'architecture.
💡 Prix de l'opération terrain + maison : 460 000 €
Ne laissez pas passer cette opportunité unique ! Contactez dès maintenant Erwan Tilly de Maisons de l'Avenir, pour visiter ce terrain et concrétiser votre projet sur mesure.
📞 Contact : Erwan Tilly
Maisons de l'Avenir
Un bien d'une telle qualité ne restera pas disponible longtemps. Faites vite ! 🏡
Mentions légales
Terrain proposé par un partenaire foncier selon disponibilités et autorisation de publicité au prix de 130 000 €. Hors droit d'enregistrement et frais de notaire. Terrain + Maison proposés au prix de 460 000 € (Hors branchements et raccordements, papiers peints, peintures, revêtement de sol dans les chambres. Tarif modifiable sans préavis). Etiquette énergie : A. Différents modèles disponibles pour ce terrain. Assurances et garanties du constructeur (RC professionnelle, décennale, dommage ouvrage, garantie de remboursement de l'acompte, livraison à prix et délai convenu) : https://www.maisonsdelavenir.com/mentions-legales/.Agence Maisons de l'Avenir de Guipavas (29490)
- Téléphone :
- 02 98 03 90 90
- Adressse :
- 10 Rue de Poul Ar Feunteun
29490 Guipavas, France
