Maison neuve à
Locmariaquer (56740) Référence : KC1617146_3

Prix du projet : Maison avec Terrain

prix 390 000 €

  • 6 pièces
  • 5 chambres
  • Surface maison 92 m2

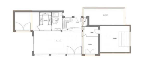
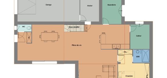
Locmariaquer : maison F6 (92 m²) en vente
IDÉALEMENT SITUÉE - MAISON 6 PIÈCES NEUVE
En vente : idéalement située, découvrez à Locmariaquer (56740) cette maison de 6 pièces de 92 m² et de 325 m² de terrain. Elle offre cinq chambres, une cuisine et deux salles de bains.
C'est une maison de 2 niveaux. Elle est neuve.
Cette maison se situe dans un quartier recherché. L'École Primaire Publique le Votten y est implantée. On trouve un accès à la nationale N165 à 10 km. Pour vos loisirs, vous pourrez compter sur une bibliothèque dans les environs. Il y a également un commerce.
Son prix de vente est de 390 000 €.
Prenez contact avec Kévin COLLET (02-97-68-32-50) pour toute information sur la maison ou sur les démarches à suivre.

Mentions légales

Maisons de l’Avenir, constructeur de maisons individuelles, propose en collaboration avec ses partenaires fonciers, une sélection de terrains constructibles, selon disponibilité, pour la construction de maisons neuves définies par le constructeur, avec un contrat de construction de maison individuelle, dans le cadre de la loi du 19/12/1990. Prix net, hors frais notariés, d'enregistrement et de publicité foncière

Terrain proposé au prix de : 189 000 €

Maison proposée au prix de : 201 000 €

Etiquette énergie : A. Assurances et garanties du constructeur (RC professionnelle, décennale, dommage ouvrage, Garantie de livraison à prix et délai convenu). https://www.maisonsdelavenir.com/mentions-legales/

Contactez l'agence de Vannes

02 97 68 32 50

    * Champs obligatoires

    Vos informations sont traitées par HEXAOM et transmises à un conseiller commercial qui vous contactera afin de répondre à votre demande. Les plans et images présentés sur notre site sont la propriété d’HEXAOM et ne peuvent pas être reproduits sans son accord. Pour retrouver notre politique de protection des données personnelles et exercer vos droits conformément à la « loi informatique et liberté » cliquez-ici.