Maison neuve à
Loctudy (29750) Référence : JG1546314_2

Prix du projet : Maison avec Terrain

prix 278 900 €

  • 4 pièces
  • 3 chambres
  • Surface maison 77 m2

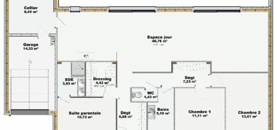
Maison T4 (77 m²) en vente à Loctudy
IDÉALEMENT SITUÉ - MAISON 4 PIÈCES NEUVE
À vendre : idéalement située, à Loctudy (29750) découvrez cette maison de 4 pièces de 77 m².
Cette maison comporte trois chambres, une cuisine et une salle de bains. La maison de plain-pied est neuve.
Le terrain de la propriété est de 397 m².
Cette maison se situe dans un quartier recherché. On trouve des écoles maternelles et élémentaires à proximité : l'École Primaire Publique Jules Ferry et l'École Primaire Privée Saint Tudy. Il y a un bureau de poste et un port de plaisance dans les environs. Enfin, le marché Place des Anciens comb anime le quartier toutes les semaines le mardi matin.
Elle est proposée à l'achat pour 278 900 . Loctudy est une commune classée B2 pour le PTZ.
Énergétiquement parlant, cette maison est très performante. Elle a une classe énergétique A, ce qui indique une très bonne performance énergétique.
Contactez Jean GILLARDET (02-98-87-34-21) pour tout renseignement sur la maison ou sur les démarches à suivre. Donnez vie à vos projets immobiliers avec Maisons de l'Avenir Pont-l'Abbé.

Mentions légales

Maisons de l’Avenir, constructeur de maisons individuelles, propose en collaboration avec ses partenaires fonciers, une sélection de terrains constructibles, selon disponibilité, pour la construction de maisons neuves définies par le constructeur, avec un contrat de construction de maison individuelle, dans le cadre de la loi du 19/12/1990. Prix net, hors frais notariés, d'enregistrement et de publicité foncière

Terrain proposé au prix de : 85 000 €

Maison proposée au prix de : 193 900 €

Etiquette énergie : A. Assurances et garanties du constructeur (RC professionnelle, décennale, dommage ouvrage, Garantie de livraison à prix et délai convenu). https://www.maisonsdelavenir.com/mentions-legales/

Contactez l'agence de Pont-l'Abbé

02 98 87 34 21

    * Champs obligatoires

    Vos informations sont traitées par HEXAOM et transmises à un conseiller commercial qui vous contactera afin de répondre à votre demande. Les plans et images présentés sur notre site sont la propriété d’HEXAOM et ne peuvent pas être reproduits sans son accord. Pour retrouver notre politique de protection des données personnelles et exercer vos droits conformément à la « loi informatique et liberté » cliquez-ici.