Maison neuve à
Lognes
(77185) Référence :
IL2317932_1
Prix du projet : Maison avec Terrain
prix 438 000 €
- 5 pièces
- 3 chambres
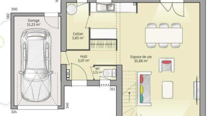
- Surface maison 90 m2
Lognes : maison de 5 pièces (90 m²) en vente
PROCHE GARE - MAISON 5 PIÈCES NEUVE
À vendre : à 525 m du RER A (20 min de Paris), votre agence Maisons France Confort Magny-le-Hongre est heureuse de vous proposer cette maison de 5 pièces de 90 m² dans Lognes (77185), proche de la gare.
Cette maison comporte 2 niveaux. Son intérieur compte trois chambres, une cuisine et une salle de bains. La maison est neuve.
Le terrain du bien s'étend sur 318 m².
Il y a plusieurs écoles (maternelle, élémentaire, primaire et collège) à moins de 10 minutes à pied, tout comme cinq crèches. Niveau transports, on trouve la station de RER Lognes (ligne A) à quelques pas de la maison. On trouve trois tennis, des commerces, deux supermarchés, quatre boulangeries, un bureau de poste et une boucherie-charcuterie à proximité de la maison.
Son prix de vente est de 438 000 €.
N'hésitez pas à prendre contact avec notre constructeur Thomas ROUSSEL TOUATI (06-67-03-68-69) pour plus d'informations sur la propriété, sur les modalités de vente ou sur les démarches à suivre.
Annonce proposée par un Agent Commercial Partenaire.
Mentions légales
Terrain proposé par un partenaire foncier selon disponibilités et autorisation de publicité au prix de 260 000 €. Hors droit d'enregistrement et frais de notaire. Maison proposée, avec un contrat de construction de maison individuelle, dans le cadre de la loi du 19/12/1990, au prix de 178 000 € (Hors branchements et raccordements, papiers peints, peintures, revêtement de sol dans les chambres, qui sont chiffrés dans les travaux qui restent à charge du client. Tarif modifiable sans préavis). Étiquette énergie : A. Différents modèles disponibles pour ce terrain. Assurances et garanties du constructeur comprises (RC professionnelle, décennale, dommage ouvrage).Agence Maisons France Confort de Magny-le-Hongre (77700)
- Téléphone :
- 01 84 80 92 96
- Adressse :
- 11 rue de Courtalin
77700 Magny-le-Hongre, France
