Maison neuve à
Loison-sous-Lens
(62218) Référence :
TH2444596_11
Prix du projet : Maison avec Terrain
prix 357 906 €
- 6 pièces
- 5 chambres
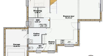
- Surface maison 114 m2
MAISON OSSATURE BOIS
VENTE d'une maison de 6 pièces (114 m²) à Loison-sous-Lens
IDÉALEMENT SITUÉE - MAISON 6 PIÈCES NEUVE
À vendre, idéalement située dans Loison-sous-Lens (62218), nous sommes ravis de vous présenter cette maison de 6 pièces de 114 m². Elle est composée de cinq chambres, d'une cuisine et de deux salles de bains.
Le terrain de cette maison s'étend sur 423 m².
Cette maison possède 2 niveaux. Elle est neuve.
Elle est située dans un secteur convoité. On trouve des écoles maternelles et élémentaires à moins de 10 minutes à pied. Côté transports en commun, il y a la gare Loison-sous-Lens à proximité. On trouve plusieurs commerces, deux épiceries et une boucherie-charcuterie dans les environs.
Elle est à vendre pour la somme de 357 906 €.
Contactez notre agence (Thomas HAUSTRATE : 06-49-81-47-04) pour toute information sur cette maison ou sur les démarches à suivre. Maisons France Confort Hénin-Beaumont est là pour vous accompagner dans tous vos projets immobiliers.
Mentions légales
Terrain proposé par un partenaire foncier selon disponibilités et autorisation de publicité au prix de 73 000 €. Hors droit d'enregistrement et frais de notaire. Terrain + Maison proposés au prix de 357 906 € (Hors branchements et raccordements, papiers peints, peintures, revêtement de sol dans les chambres. Tarif modifiable sans préavis). Etiquette énergie : A. Différents modèles disponibles pour ce terrain. Assurances et garanties du constructeur (RC professionnelle, décennale, dommage ouvrage, garantie de remboursement de l'acompte, livraison à prix et délai convenu) : https://www.maisons-france-confort.fr/mentions-legales/. HEXAOM Services est enregistré auprès de l'ORIAS en tant que Courtier en financement, Niveau 1, sous le numéro 14001345.Agence Maisons France Confort de Hénin-Beaumont (62110)
- Téléphone :
- 03 21 14 37 05
- Adressse :
- Chemin de Noyelles
62110 Hénin-Beaumont, France
