Maison neuve à
Longeville-sur-Mer
(85560) Référence :
JG2434949_4
Prix du projet : Maison avec Terrain
prix 341 000 €
- 5 pièces
- 4 chambres
- Surface maison 113 m2
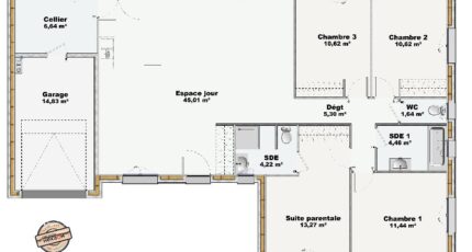
Projet de construction - Maison 5 pièces à ossature bois à Longeville-sur-Mer (85560)
Dans un quartier recherché de Longeville-sur-Mer (85560), découvrez ce projet de construction d'une maison individuelle à ossature bois de 113 m², de plain-pied, sur un terrain de 425 m².
Cette maison familiale se compose de quatre chambres, dont une suite parentale, d'une grande pièce de vie lumineuse avec cuisine ouverte, ainsi que de deux salles de bains. Un garage complète également ce projet. L'agencement a été pensé pour offrir un espace de vie confortable, fonctionnel et convivial.
Conçue en maison à ossature bois, cette construction présente de nombreux avantages particulièrement appréciés aujourd'hui :
Excellentes performances énergétiques, limitant les consommations de chauffage.
Confort thermique et acoustique optimal au quotidien.
Construction écologique, grâce à l'utilisation d'un matériau durable et renouvelable.
Rapidité de construction grâce à la préfabrication en atelier.
Ambiance chaleureuse et moderne, très recherchée pour les maisons contemporaines.
Situé à seulement 4 km de l'océan Atlantique, ce projet bénéficie d'un environnement agréable.
L'École Primaire Publique Jules Verne se trouve à moins de 10 minutes à pied. À proximité, vous trouverez également plusieurs commerces, une épicerie et une boucherie-charcuterie, facilitant le quotidien.
Prix du projet : 341 000 €
Pour tout renseignement sur ce projet de construction, les modalités de vente ou les démarches à suivre, contactez :
Jessica GAUTHREAU - LMP CONSTRUCTION 24 RUE NATIONALE 85750 ANGLES
LMP Constructeur Angles vous accompagne à chaque étape de votre projet de maison à ossature bois, de la conception jusqu'à la réalisation.
Annonce proposée par un Agent Commercial Partenaire.
Mentions légales
Terrain proposé par un partenaire foncier selon disponibilités et autorisation de publicité au prix de 89 000 €. Hors droit d'enregistrement et frais de notaire. Terrain + Maison proposés au prix de 341 000 € (Hors branchements et raccordements, papiers peints, peintures, revêtement de sol dans les chambres. Tarif modifiable sans préavis). Etiquette énergie : A. Différents modèles disponibles pour ce terrain. Assurances et garanties du constructeur (RC professionnelle, décennale, dommage ouvrage, garantie de remboursement de l'acompte, livraison à prix et délai convenu) : https://www.lmp-constructeur.com/mentions-legales/.Agence Logis du Marais Poitevin de Angles (85750)
- Téléphone :
- 02 51 27 43 52
- Adressse :
- 24 rue Nationale
85750 Angles, France
