Maison neuve à
Lorgues
(83510) Référence :
FDG2439443_4
Prix du projet : Maison avec Terrain
prix 381 000 €
- 5 pièces
- 4 chambres
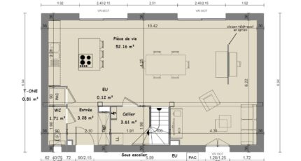
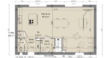
- Surface maison 119 m2
VENTE : maison T5 (119 m²) à Lorgues
EMPLACEMENT PRIVILÉGIÉ - MAISON 5 PIÈCES NEUVE
À vendre : située à 36 km de la mer Méditerranée et à quelques kilomètres de Draguignan, nous sommes heureux de vous proposer cette maison de 5 pièces de 119 m² et de 2 000 m² de terrain bénéficiant d'un emplacement privilégié dans Lorgues (83510). Son intérieur comporte quatre chambres, une cuisine et deux salles de bains.
Il s'agit d'une maison de 2 niveaux. Elle est neuve.
La maison est située dans un quartier convoité. On trouve tous les types d'établissements scolaires (maternelle, élémentaire et secondaire) à moins de 10 minutes à pied. Côté transports, il y a la gare Vidauban à moins de 10 minutes en voiture. On trouve deux tennis, un bassin de natation, des commerces, des boulangeries, un supermarché, un bureau de poste et une supérette dans les environs.
Elle est proposée à l'achat pour 381 000 €. Montant hors frais de raccordements et d'adaptation au sol.
Prenez contact avec notre agence (DI GREGORIO Fabrice : O6-28-31-68-1O) pour toute information sur la maison ou sur les modalités de vente.
Mentions légales
Terrain proposé par un partenaire foncier selon disponibilités et autorisation de publicité au prix de 155 000 €. Hors droit d'enregistrement et frais de notaire. Terrain + Maison proposés au prix de 381 000 € (Hors branchements et raccordements, papiers peints, peintures, revêtement de sol dans les chambres. Tarif modifiable sans préavis). Etiquette énergie : A. Différents modèles disponibles pour ce terrain. Assurances et garanties du constructeur (RC professionnelle, décennale, dommage ouvrage, garantie de remboursement de l'acompte, livraison à prix et délai convenu) : https://www.maisons-france-confort.fr/mentions-legales/. HEXAOM Services est enregistré auprès de l'ORIAS en tant que Courtier en financement, Niveau 1, sous le numéro 14001345.Agence Maisons France Confort de Fréjus (83600)
- Téléphone :
- 04 98 12 91 10
- Adressse :
- 992, Avenue de Provence
83600 Fréjus, France
