Maison neuve à
Louit (65350) Référence : LB2430478_2

Prix du projet : Maison avec Terrain

prix 179 000 €

  • 4 pièces
  • 3 chambres
  • Surface maison 90 m2

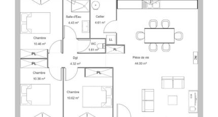
VENTE : maison T4 (90 m²) à Louit
IDÉALEMENT SITUÉE - MAISON 4 PIÈCES NEUVE
Maisons Bruno Petit GHPA vous propose cette maison de 4 pièces de plain-pied de 90 m².
Cette maison compte trois chambres, une cuisine et une salle de bains.
Le terrain du bien est de 938m².
Maison proposée à partir de 179 000€ Hors frais de notaire. A composer selon votre projet et vos envies.
N'hésitez pas à prendre contact avec notre agence (Demandez Laurent BAZIN 06.21.35.99.37 Bruno Petit à Juillan) pour toute question sur la maison, sur les démarches à suivre ou sur les modalités de vente.

Mentions légales

Terrain proposé par un partenaire foncier selon disponibilités et autorisation de publicité au prix de 32 000 €. Hors droit d'enregistrement et frais de notaire. Terrain + Maison proposés au prix de 179 000 € (Hors branchements et raccordements, papiers peints, peintures, revêtement de sol dans les chambres. Tarif modifiable sans préavis). Etiquette énergie : A. Différents modèles disponibles pour ce terrain. Assurances et garanties du constructeur (RC professionnelle, décennale, dommage ouvrage, garantie de remboursement de l'acompte, livraison à prix et délai convenu) : https://www.maisons-bruno-petit.com/mentions-legales/.

Contactez l'agence de Juillan

05 62 32 91 45

    * Champs obligatoires

    Vos informations sont traitées par HEXAOM et transmises à un conseiller commercial qui vous contactera afin de répondre à votre demande. Les plans et images présentés sur notre site sont la propriété d’HEXAOM et ne peuvent pas être reproduits sans son accord. Pour retrouver notre politique de protection des données personnelles et exercer vos droits conformément à la « loi informatique et liberté » cliquez-ici.