Maison neuve à
Loupian
(34140) Référence :
LR2423311_3
Prix du projet : Maison avec Terrain
prix 370 000 €
- 5 pièces
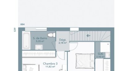
- 3 chambres
- Surface maison 92 m2
Maison T5 (92 m²) en vente à Loupian
IDÉALEMENT SITUÉE - MAISON 5 PIÈCES NEUVE
À vendre situé sur le littoral méditerranéen, à 20 minutes de Sète et de Montpellier, à 30 minutes des portes de Béziers et de Agde, nous vous présentons cette maison de 5 pièces de 92 m² idéalement située dans Loupian (34140).
Cette maison comporte 2 niveaux. Elle propose trois chambres, une cuisine et trois salles de bains. La maison est neuve.
Le terrain du bien est de 304 m².
Cette maison se trouve dans un secteur prisé. Il y a l'École Primaire le Chêne Vert et le Collège Olympe de Gouges à moins de 10 minutes à pied. Côté transports, on trouve la gare Sète à moins de 10 minutes en voiture. Il y a un accès à l'autoroute A9 à 7 km. Il y a un tennis, une bibliothèque, trois boulangeries, un commerce, une épicerie, un bureau de poste et une poissonnerie à quelques minutes.
Elle est proposée à l'achat pour 370 000 €.
Contactez notre agence (ROMERA Lionel : 06-30-39-77-79) pour toute information sur la propriété ou sur les modalités de vente. Maisons France Confort Montpellier est là pour vous accompagner dans toutes vos démarches.
Annonce proposée par un Agent Commercial Partenaire.
Mentions légales
Terrain proposé par un partenaire foncier selon disponibilités et autorisation de publicité au prix de 149 900 €. Hors droit d'enregistrement et frais de notaire. Terrain + Maison proposés au prix de 370 000 € (Hors branchements et raccordements, papiers peints, peintures, revêtement de sol dans les chambres. Tarif modifiable sans préavis). Etiquette énergie : A. Différents modèles disponibles pour ce terrain. Assurances et garanties du constructeur (RC professionnelle, décennale, dommage ouvrage, garantie de remboursement de l'acompte, livraison à prix et délai convenu) : https://www.maisons-france-confort.fr/mentions-legales/. HEXAOM Services est enregistré auprès de l'ORIAS en tant que Courtier en financement, Niveau 1, sous le numéro 14001345.Agence Maisons France Confort de Montpellier (34000)
- Téléphone :
- 04 67 64 85 11
- Adressse :
- 48, impasse Louis Ferdinand Herold
34000 Montpellier, France
