Maison neuve à
Louplande
(72210) Référence :
FH2472856_16
Prix du projet : Maison avec Terrain
prix 565 000 €
- 8 pièces
- 4 chambres
- Surface maison 256 m2
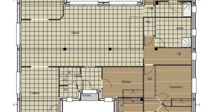
Maison F8 (256 m²) à vendre à Louplande
IDÉALEMENT SITUÉE - MAISON 8 PIÈCES NEUVE
À vendre : à 12 km du Mans, nous vous proposons, idéalement située dans Louplande (72210), cette maison de 8 pièces de plain-pied de 256 m² et de 518 m² de terrain. Elle propose quatre chambres, une cuisine et deux salles de bains.
Cette maison est neuve.
La maison est située dans un quartier convoité. L'École Primaire Publique Mozart se trouve à moins de 10 minutes à pied. Niveau transports en commun, il y a les gares Voivres-lès-le-Mans et La Suze-sur-Sarthe à moins de 10 minutes en voiture. L'autoroute A11 est accessible à 3 km. On trouve un tennis, une bibliothèque et un commerce à quelques minutes à peine.
Elle est proposée à l'achat pour 565 000 €.
N'hésitez pas à prendre contact avec François HOUDAYER (06-23-38-26-90) pour plus d'informations sur la maison ou sur les démarches à suivre. Maine Construction Le Mans est là pour vous accompagner dans tous vos projets immobiliers.
Mentions légales
Terrain proposé par un partenaire foncier selon disponibilités et autorisation de publicité au prix de 49 200 €. Hors droit d'enregistrement et frais de notaire. Terrain + Maison proposés au prix de 565 000 € (Hors branchements et raccordements, papiers peints, peintures, revêtement de sol dans les chambres. Tarif modifiable sans préavis). Etiquette énergie : A. Différents modèles disponibles pour ce terrain. Assurances et garanties du constructeur (RC professionnelle, décennale, dommage ouvrage, garantie de remboursement de l'acompte, livraison à prix et délai convenu) : https://www.maine-construction.fr/mentions-legales/. HEXAOM Services est enregistré auprès de l'ORIAS en tant que Courtier en financement, Niveau 1, sous le numéro 14001345.Agence Maine Construction de Le Mans (72000)
- Téléphone :
- 02 43 21 93 33
- Adressse :
- Rond-point de César Antarès
72000 Le Mans, France
