Maison neuve à
Luant (36350) Référence : KG2430609_8

Prix du projet : Maison avec Terrain

prix 303 800 €

  • 5 pièces
  • 4 chambres
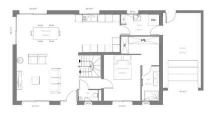
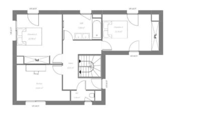
  • Surface maison 120 m2

Projet de construction d'une maison T5 (120 m²) à Luant
EMPLACEMENT PRIVILÉGIÉ - MAISON 5 PIÈCES NEUVE
En vente : à 13 km de Châteauroux, bénéficiant d'un emplacement privilégié dans Luant (36350), découvrez cette maison de 5 pièces de 120 m² et de 1 120 m² de terrain.
C'est une maison de 2 niveaux. Son intérieur compte quatre chambres, une cuisine et deux salles de bains. La maison est neuve.
Cette maison est située dans un secteur convoité. L'École Primaire Jeanne Dacquin se trouve à moins de 10 minutes à pied. Niveau transports en commun, il y a deux gares (Luant et Lothiers) à moins de 10 minutes en voiture. Il y a un accès à l'autoroute A20 à 5 km. On trouve un tennis, une bibliothèque et une boulangerie dans les environs.
Son prix de vente est de 303 800 €.
N'hésitez pas à prendre contact avec Kevin GRIMAUD (*6-22-14-89-67) pour tout renseignement sur la maison. Maisons Bruno Petit MJB Châteauroux vous accompagne à toutes les étapes de votre projet et dans tous vos projets immobiliers.

Mentions légales

Terrain proposé par un partenaire foncier selon disponibilités et autorisation de publicité au prix de 20 000 €. Hors droit d'enregistrement et frais de notaire. Terrain + Maison proposés au prix de 303 800 € (Hors branchements et raccordements, papiers peints, peintures, revêtement de sol dans les chambres. Tarif modifiable sans préavis). Etiquette énergie : A. Différents modèles disponibles pour ce terrain. Assurances et garanties du constructeur (RC professionnelle, décennale, dommage ouvrage, garantie de remboursement de l'acompte, livraison à prix et délai convenu) : https://www.maisons-brunopetit.fr/mentions-legales/.

Contactez l'agence de Châteauroux

02 54 22 66 24

    * Champs obligatoires

    Vos informations sont traitées par HEXAOM et transmises à un conseiller commercial qui vous contactera afin de répondre à votre demande. Les plans et images présentés sur notre site sont la propriété d’HEXAOM et ne peuvent pas être reproduits sans son accord. Pour retrouver notre politique de protection des données personnelles et exercer vos droits conformément à la « loi informatique et liberté » cliquez-ici.