Maison neuve à
Lumigny-Nesles-Ormeaux (77540) Référence : CY2432046_1

Prix du projet : Maison avec Terrain

prix 280 000 €

  • 5 pièces
  • 3 chambres
  • Surface maison 90 m2

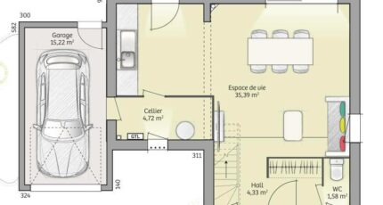
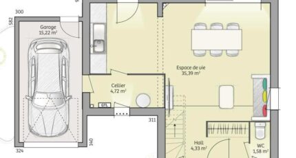
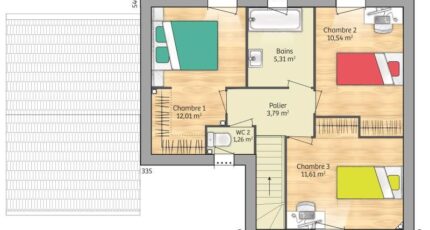
Maison T5 (90 m²) en vente à Lumigny-Nesles-Ormeaux
PROCHE DE MEAUX - MAISON 5 PIÈCES NEUVE
En vente : à deux pas du Transilien P (gare de Marles-en-Brie, 35 min de Paris), notre agence Maisons France Confort Magny-le-Hongre est ravie de vous présenter cette maison de 5 pièces de 90 m² à Lumigny-Nesles-Ormeaux (77540). Son intérieur compte trois chambres, une cuisine et une salle de bains.
Le terrain de la propriété est de 459 m².
C'est une maison de 2 niveaux. Elle est neuve.
Il y a l'École Maternelle les Ecureuils et l'École Primaire du Ru de la Fontaine dans la commune. Niveau transports en commun, on trouve la gare Marles-en-Brie à moins de 10 minutes en voiture. On trouve un commerce et une poissonnerie à proximité.
Elle est à vendre pour la somme de 280 000 €.
N'hésitez pas à prendre contact avec Cedric YAHIAOUI (06-66-57-00-63) pour tout renseignement sur la maison.

Annonce proposée par un Agent Commercial Partenaire.

Mentions légales

Terrain proposé par un partenaire foncier selon disponibilités et autorisation de publicité au prix de 120 000 €. Hors droit d'enregistrement et frais de notaire. Terrain + Maison proposés au prix de 280 000 € (Hors branchements et raccordements, papiers peints, peintures, revêtement de sol dans les chambres. Tarif modifiable sans préavis). Etiquette énergie : A. Différents modèles disponibles pour ce terrain. Assurances et garanties du constructeur (RC professionnelle, décennale, dommage ouvrage, garantie de remboursement de l'acompte, livraison à prix et délai convenu) : https://www.maisons-france-confort.fr/mentions-legales/. HEXAOM Services est enregistré auprès de l'ORIAS en tant que Courtier en financement, Niveau 1, sous le numéro 14001345.

Contactez l'agence de Magny-le-Hongre

01 84 80 92 96

    * Champs obligatoires

    Vos informations sont traitées par HEXAOM et transmises à un conseiller commercial qui vous contactera afin de répondre à votre demande. Les plans et images présentés sur notre site sont la propriété d’HEXAOM et ne peuvent pas être reproduits sans son accord. Pour retrouver notre politique de protection des données personnelles et exercer vos droits conformément à la « loi informatique et liberté » cliquez-ici.