Maison neuve à
Lumigny-Nesles-Ormeaux
(77540) Référence :
CY2432063_1
Prix du projet : Maison avec Terrain
prix 269 000 €
- 5 pièces
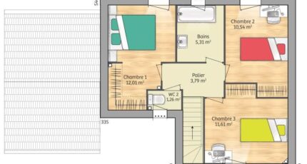
- 3 chambres
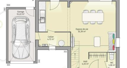
- Surface maison 90 m2
VENTE d'une maison de 5 pièces (90 m²) à Lumigny-Nesles-Ormeaux
MAISON 5 PIÈCES NEUVE - PROCHE DE MEAUX
Proche du Transilien P (gare de Marles-en-Brie, 35 min de Paris), laissez vous charmer par cette maison de 5 pièces de 90 m² à vendre à Lumigny-Nesles-Ormeaux (77540). Son intérieur compte trois chambres, une cuisine et une salle de bains.
Le terrain du bien s'étend sur 323 m².
Cette maison comporte 2 niveaux. Elle est neuve.
L'École Maternelle les Ecureuils et l'École Primaire du Ru de la Fontaine sont implantées dans la commune. Côté transports, il y a la gare Marles-en-Brie à moins de 10 minutes en voiture. On trouve un commerce et une poissonnerie dans les environs.
Elle est à vendre pour la somme de 269 000 €.
Contactez notre agence (Cedric YAHIAOUI : 06-66-57-00-63) pour plus de renseignements sur la maison. Concrétisez vos projets immobiliers avec Maisons France Confort Magny-le-Hongre.
Annonce proposée par un Agent Commercial Partenaire.
Mentions légales
Terrain proposé par un partenaire foncier selon disponibilités et autorisation de publicité au prix de 109 000 €. Hors droit d'enregistrement et frais de notaire. Terrain + Maison proposés au prix de 269 000 € (Hors branchements et raccordements, papiers peints, peintures, revêtement de sol dans les chambres. Tarif modifiable sans préavis). Etiquette énergie : A. Différents modèles disponibles pour ce terrain. Assurances et garanties du constructeur (RC professionnelle, décennale, dommage ouvrage, garantie de remboursement de l'acompte, livraison à prix et délai convenu) : https://www.maisons-france-confort.fr/mentions-legales/. HEXAOM Services est enregistré auprès de l'ORIAS en tant que Courtier en financement, Niveau 1, sous le numéro 14001345.Agence Maisons France Confort de Magny-le-Hongre (77700)
- Téléphone :
- 01 84 80 92 96
- Adressse :
- 11 rue de Courtalin
77700 Magny-le-Hongre, France
