Maison neuve à
Lumigny-Nesles-Ormeaux
(77540) Référence :
CY2432079_1
Prix du projet : Maison avec Terrain
prix 295 000 €
- 5 pièces
- 3 chambres
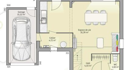
- Surface maison 90 m2
Lumigny-Nesles-Ormeaux : maison de 5 pièces (90 m²) à vendre
MAISON 5 PIÈCES NEUVE - PROCHE DE MEAUX
À proximité du Transilien P (gare de Marles-en-Brie, 35 min de Paris), nous vous proposons cette maison de 5 pièces de 90 m² à Lumigny-Nesles-Ormeaux (77540). Elle dispose de trois chambres, d'une cuisine et d'une salle de bains.
Le terrain du bien s'étend sur 494 m².
C'est une maison de 2 niveaux. Elle est neuve.
L'École Maternelle les Ecureuils et l'École Primaire du Ru de la Fontaine sont implantées dans la commune. Côté transports en commun, il y a la gare Marles-en-Brie à moins de 10 minutes en voiture. On trouve un commerce et une poissonnerie à quelques minutes à peine.
Elle est proposée à l'achat pour 295 000 €.
Contactez Cedric YAHIAOUI (06-66-57-00-63) pour toute information sur la maison ou sur les démarches à suivre. Maisons France Confort Magny-le-Hongre vous accompagne à toutes les étapes de votre projet et dans tous vos projets immobiliers.
Annonce proposée par un Agent Commercial Partenaire.
Mentions légales
Terrain proposé par un partenaire foncier selon disponibilités et autorisation de publicité au prix de 135 000 €. Hors droit d'enregistrement et frais de notaire. Terrain + Maison proposés au prix de 295 000 € (Hors branchements et raccordements, papiers peints, peintures, revêtement de sol dans les chambres. Tarif modifiable sans préavis). Etiquette énergie : A. Différents modèles disponibles pour ce terrain. Assurances et garanties du constructeur (RC professionnelle, décennale, dommage ouvrage, garantie de remboursement de l'acompte, livraison à prix et délai convenu) : https://www.maisons-france-confort.fr/mentions-legales/. HEXAOM Services est enregistré auprès de l'ORIAS en tant que Courtier en financement, Niveau 1, sous le numéro 14001345.Agence Maisons France Confort de Magny-le-Hongre (77700)
- Téléphone :
- 01 84 80 92 96
- Adressse :
- 11 rue de Courtalin
77700 Magny-le-Hongre, France
