Maison neuve à
Lumigny-Nesles-Ormeaux
(77540) Référence :
CY2432105_1
Prix du projet : Maison avec Terrain
prix 290 000 €
- 5 pièces
- 3 chambres
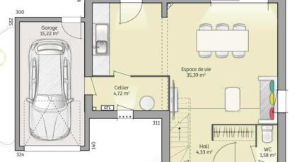
- Surface maison 90 m2
VENTE : maison T5 (90 m²) à Lumigny-Nesles-Ormeaux
PROCHE DE MEAUX - MAISON 5 PIÈCES NEUVE
À quelques minutes de la gare de Marles-en-Brie (Paris à 35 min avec le Transilien P), Maisons France Confort Magny-le-Hongre vous propose cette maison de 5 pièces de 90 m² à Lumigny-Nesles-Ormeaux (77540).
Cette maison compte 2 niveaux. Son intérieur comporte trois chambres, une cuisine et une salle de bains. La maison est neuve.
Le terrain du bien est de 405 m².
L'École Maternelle les Ecureuils et l'École Primaire du Ru de la Fontaine sont implantées dans la commune. Côté transports en commun, il y a la gare Marles-en-Brie à moins de 10 minutes en voiture. On trouve un commerce et une poissonnerie à quelques minutes à peine.
Elle est proposée à l'achat pour 290 000 €.
N'hésitez pas à prendre contact avec Cedric YAHIAOUI (06-66-57-00-63) pour plus de renseignements sur la maison ou sur les modalités de vente.
Annonce proposée par un Agent Commercial Partenaire.
Mentions légales
Terrain proposé par un partenaire foncier selon disponibilités et autorisation de publicité au prix de 130 000 €. Hors droit d'enregistrement et frais de notaire. Terrain + Maison proposés au prix de 290 000 € (Hors branchements et raccordements, papiers peints, peintures, revêtement de sol dans les chambres. Tarif modifiable sans préavis). Etiquette énergie : A. Différents modèles disponibles pour ce terrain. Assurances et garanties du constructeur (RC professionnelle, décennale, dommage ouvrage, garantie de remboursement de l'acompte, livraison à prix et délai convenu) : https://www.maisons-france-confort.fr/mentions-legales/. HEXAOM Services est enregistré auprès de l'ORIAS en tant que Courtier en financement, Niveau 1, sous le numéro 14001345.Agence Maisons France Confort de Magny-le-Hongre (77700)
- Téléphone :
- 01 84 80 92 96
- Adressse :
- 11 rue de Courtalin
77700 Magny-le-Hongre, France
