Maison neuve à
Lumigny-Nesles-Ormeaux (77540) Référence : CY2432745_1

Prix du projet : Maison avec Terrain

prix 293 000 €

  • 5 pièces
  • 3 chambres
  • Surface maison 90 m2

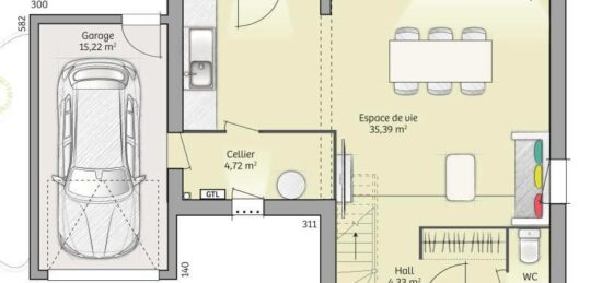
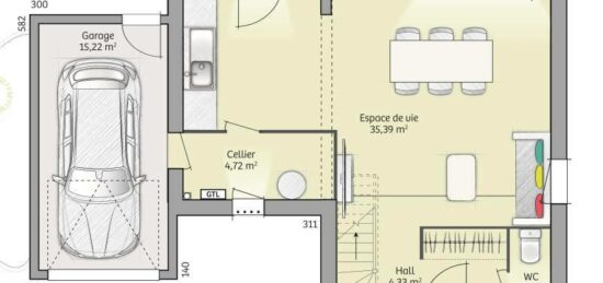
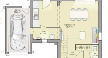
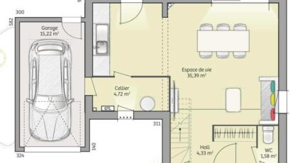
Maison de 5 pièces (90 m²) en vente à Lumigny-Nesles-Ormeaux
PROCHE DE MEAUX - MAISON 5 PIÈCES NEUVE
À quelques minutes de la gare de Marles-en-Brie (Paris à 35 min avec le Transilien P), venez découvrir cette maison de 5 pièces de 90 m² à Lumigny-Nesles-Ormeaux (77540). Son intérieur dispose de trois chambres, d'une cuisine et d'une salle de bains.
Le terrain de la propriété s'étend sur 433 m².
Cette maison possède 2 niveaux. Elle est neuve.
Il y a l'École Élémentaire du Ru de la Fontaine et l'École Maternelle les Ecureuils dans la commune. Côté transports en commun, on trouve la gare Marles-en-Brie à moins de 10 minutes en voiture. On trouve un commerce et une poissonnerie dans les environs.
Son prix de vente est de 293 000 €.
Contactez notre agence (YAHIAOUI Cedric : 06-66-57-00-63) pour obtenir de plus amples informations sur la maison, sur les démarches à suivre ou sur les modalités de vente. Maisons France Confort Magny-le-Hongre est là pour vous accompagner dans tous vos projets immobiliers.

Annonce proposée par un Agent Commercial Partenaire.

Mentions légales

Terrain proposé par un partenaire foncier selon disponibilités et autorisation de publicité au prix de 133 000 €. Hors droit d'enregistrement et frais de notaire. Terrain + Maison proposés au prix de 293 000 € (Hors branchements et raccordements, papiers peints, peintures, revêtement de sol dans les chambres. Tarif modifiable sans préavis). Etiquette énergie : A. Différents modèles disponibles pour ce terrain. Assurances et garanties du constructeur (RC professionnelle, décennale, dommage ouvrage, garantie de remboursement de l'acompte, livraison à prix et délai convenu) : https://www.maisons-france-confort.fr/mentions-legales/. HEXAOM Services est enregistré auprès de l'ORIAS en tant que Courtier en financement, Niveau 1, sous le numéro 14001345.

Contactez l'agence de Magny-le-Hongre

01 84 80 92 96

    * Champs obligatoires

    Vos informations sont traitées par HEXAOM et transmises à un conseiller commercial qui vous contactera afin de répondre à votre demande. Les plans et images présentés sur notre site sont la propriété d’HEXAOM et ne peuvent pas être reproduits sans son accord. Pour retrouver notre politique de protection des données personnelles et exercer vos droits conformément à la « loi informatique et liberté » cliquez-ici.