Maison neuve à
Lunel-Viel (34400) Référence : NM2452384_1

Prix du projet : Maison avec Terrain

prix 409 000 €

  • 4 pièces
  • 3 chambres
  • Surface maison 95 m2

Voici notre maison Ultima GA de 95 m² que nous proposons ici sur une parcelle de 300 m² à Lunel.

Avec son architecture en L, Ultima GA offre beaucoup de lumière à la pièce de vie. Elle dispose au RDC d'un beau volume pour la cuisine, le salon et la salle à manger et propose une suite parentale distincte.
Le cellier sert de sas entre la cuisine et le garage un atout fonctionnel pour cette maison.
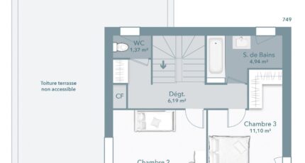
À l'étage, un palier dessert 2 belles chambres avec rangements, une salle des bains équipée et des WC.

Pour plus d'infos : Maisons France Confort Agence de St Gely du Fesc au 0467664965.
Trouvons ensemble le terrain qui vous plaît et nous nous occuperons de votre projet Maison de A à Z (élaboration des plans à la livraison clés en main).

Annonce proposée par un Agent Commercial Partenaire.

Mentions légales

Terrain proposé par un partenaire foncier selon disponibilités et autorisation de publicité au prix de 139 900 €. Hors droit d'enregistrement et frais de notaire. Terrain + Maison proposés au prix de 409 000 € (Hors branchements et raccordements, papiers peints, peintures, revêtement de sol dans les chambres. Tarif modifiable sans préavis). Etiquette énergie : A. Différents modèles disponibles pour ce terrain. Assurances et garanties du constructeur (RC professionnelle, décennale, dommage ouvrage, garantie de remboursement de l'acompte, livraison à prix et délai convenu) : https://www.maisons-france-confort.fr/mentions-legales/. HEXAOM Services est enregistré auprès de l'ORIAS en tant que Courtier en financement, Niveau 1, sous le numéro 14001345.

Contactez l'agence de Saint-Gély-du-Fesc

04 67 66 49 65

    * Champs obligatoires

    Vos informations sont traitées par HEXAOM et transmises à un conseiller commercial qui vous contactera afin de répondre à votre demande. Les plans et images présentés sur notre site sont la propriété d’HEXAOM et ne peuvent pas être reproduits sans son accord. Pour retrouver notre politique de protection des données personnelles et exercer vos droits conformément à la « loi informatique et liberté » cliquez-ici.