Maison neuve à
Machault
(77133) Référence :
CY2436036_1
Prix du projet : Maison avec Terrain
prix 277 000 €
- 5 pièces
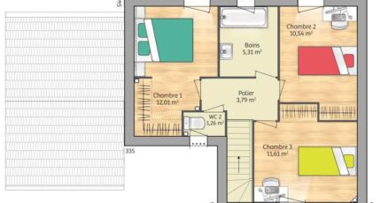
- 3 chambres
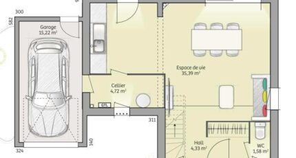
- Surface maison 90 m2
Maison F5 (90 m²) en vente à Machault
PROCHE DE MELUN - MAISON 5 PIÈCES NEUVE
À quelques minutes de la gare de Saint-Mammès (Paris à 50 min avec le Transilien R), à vendre à Machault (77133), nous sommes ravis de vous proposer cette maison de 5 pièces de 90 m². Elle comporte trois chambres, une cuisine et une salle de bains.
Le terrain de la propriété s'étend sur 461 m².
Cette maison compte 2 niveaux. Elle est neuve.
Il y a tous les types d'écoles à moins de 10 minutes en voiture, tout comme sept crèches à moins de 10 minutes à pied. Niveau transports, on trouve 10 gares à moins de 10 minutes en voiture. Il y a des tennis, des bibliothèques, trois bassins de natation, des boulangeries, des commerces, des supermarchés, des boucheries-charcuteries et des épiceries à proximité. 3 marchés animent les environs.
Elle est proposée à l'achat pour 277 000 €.
Contactez Cedric YAHIAOUI (tél : 06-66-57-00-63) pour toute question sur cette maison ou sur les modalités de vente. Maisons France Confort Magny-le-Hongre est là pour vous accompagner dans tous vos projets immobiliers.
Annonce proposée par un Agent Commercial Partenaire.
Mentions légales
Terrain proposé par un partenaire foncier selon disponibilités et autorisation de publicité au prix de 117 000 €. Hors droit d'enregistrement et frais de notaire. Terrain + Maison proposés au prix de 277 000 € (Hors branchements et raccordements, papiers peints, peintures, revêtement de sol dans les chambres. Tarif modifiable sans préavis). Etiquette énergie : A. Différents modèles disponibles pour ce terrain. Assurances et garanties du constructeur (RC professionnelle, décennale, dommage ouvrage, garantie de remboursement de l'acompte, livraison à prix et délai convenu) : https://www.maisons-france-confort.fr/mentions-legales/. HEXAOM Services est enregistré auprès de l'ORIAS en tant que Courtier en financement, Niveau 1, sous le numéro 14001345.Agence Maisons France Confort de Magny-le-Hongre (77700)
- Téléphone :
- 01 84 80 92 96
- Adressse :
- 11 rue de Courtalin
77700 Magny-le-Hongre, France
