Maison neuve à
Mainneville
(27150) Référence :
AL2403992_1
Prix du projet : Maison avec Terrain
prix 245 800 €
- 6 pièces
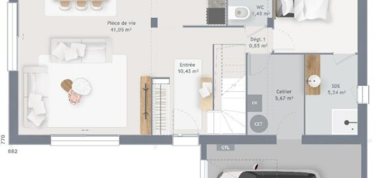
- 3 chambres
- Surface maison 95 m2
Mainneville : maison F6 (95 m²) à vendre
MAISON 6 PIÈCES NEUVE - PROCHE DE BEAUVAIS
En vente : à 30 km de Beauvais, votre agence Maisons France Confort Boos est heureuse de vous présenter cette maison de 6 pièces de plain-pied de 95 m² à Mainneville (27150). Son intérieur offre trois chambres, une cuisine et deux salles de bains.
Le terrain du bien s'étend sur 700 m².
La maison est neuve.
Il y a une école élémentaire dans le quartier. Niveau transports en commun, on trouve la gare Sérifontaine à moins de 10 minutes en voiture.
Elle est à vendre pour la somme de 245 800 €.
Contactez notre constructeur Maisons France Confort Boos 02 35 80 66 62 / 06 15 24 16 98 pour toute question sur cette maison, sur les démarches à suivre ou sur les modalités de vente.
Annonce proposée par un Agent Commercial Partenaire.
Mentions légales
Terrain proposé par un partenaire foncier selon disponibilités et autorisation de publicité au prix de 45 000 €. Hors droit d'enregistrement et frais de notaire. Terrain + Maison proposés au prix de 245 800 € (Hors branchements et raccordements, papiers peints, peintures, revêtement de sol dans les chambres. Tarif modifiable sans préavis). Etiquette énergie : A. Différents modèles disponibles pour ce terrain. Assurances et garanties du constructeur (RC professionnelle, décennale, dommage ouvrage, garantie de remboursement de l'acompte, livraison à prix et délai convenu) : https://www.maisons-france-confort.fr/mentions-legales/. HEXAOM Services est enregistré auprès de l'ORIAS en tant que Courtier en financement, Niveau 1, sous le numéro 14001345.Agence Maisons France Confort de Boos (76520)
- Téléphone :
- 02 35 80 66 62
- Adressse :
- 68 rue de la Forge Féret
76520 Boos, France
