Maison neuve à
Maisdon-sur-Sèvre
(44690) Référence :
TD2452284_1
Prix du projet : Maison avec Terrain
prix 234 000 €
- 4 pièces
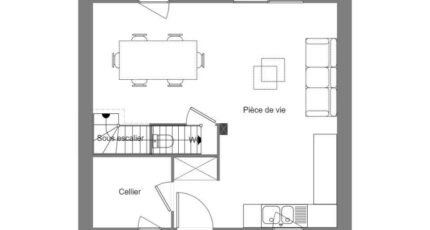
- 3 chambres
- Surface maison 70 m2
VENTE d'une maison F4 (70 m²) à Maisdon-sur-Sèvre
PROCHE DE NANTES - MAISON 4 PIÈCES NEUVE
À vendre : à 41 km de l'océan Atlantique et à quelques kilomètres de Nantes, notre agence Maisons de l'Avenir Rezé est heureuse de vous proposer cette maison de 4 pièces de 70 m² à Maisdon-sur-Sèvre (44690). Elle comporte trois chambres, une cuisine et une salle de bains.
Le terrain du bien est de 300 m².
Cette maison possède 2 niveaux.
Elle est proposée à l'achat pour 234 000 €.
N'hésitez pas à prendre contact avec notre constructeur (Thibault DUPONT pour plus d'informations sur la maison ou sur les démarches à suivre. Faites de vos projets immobiliers une réalité avec Maisons de l'Avenir Rezé.
Mentions légales
Terrain proposé par un partenaire foncier selon disponibilités et autorisation de publicité au prix de 77 000 €. Hors droit d'enregistrement et frais de notaire. Terrain + Maison proposés au prix de 234 000 € (Hors branchements et raccordements, papiers peints, peintures, revêtement de sol dans les chambres. Tarif modifiable sans préavis). Etiquette énergie : A. Différents modèles disponibles pour ce terrain. Assurances et garanties du constructeur (RC professionnelle, décennale, dommage ouvrage, garantie de remboursement de l'acompte, livraison à prix et délai convenu) : https://www.maisonsdelavenir.com/mentions-legales/.Agence Maisons de l'Avenir de Rezé (44400)
- Téléphone :
- 02 40 26 28 28
- Adressse :
- 56, rue de la butte de Praud
44400 Rezé, France
