Maison neuve à
Maison-Rouge
(77370) Référence :
CY2430237_1
Prix du projet : Maison avec Terrain
prix 219 000 €
- 5 pièces
- 3 chambres
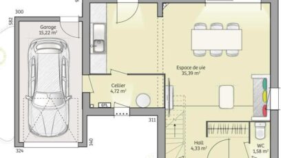
- Surface maison 90 m2
VENTE d'une maison de 5 pièces (90 m²) à Maison-Rouge
MAISON 5 PIÈCES NEUVE
À vendre : à côté du Transilien P (gare de Sainte-Colombe Septveilles, 1 h de Paris), Maisons France Confort Magny-le-Hongre vous présente à Maison-Rouge (77370), cette maison de 5 pièces de 90 m² et de 945 m² de terrain.
C'est une maison de 2 niveaux. Son intérieur inclut trois chambres, une cuisine et une salle de bains. La maison est neuve.
Il y a une école primaire dans le quartier. Niveau transports en commun, on trouve les gares Sainte-Colombe Septveilles et Longueville à moins de 10 minutes en voiture. Il y a un tennis, une boulangerie et une épicerie dans les environs.
Elle est proposée à l'achat pour 219 000 €.
Contactez notre agence (Cedric YAHIAOUI : 06-66-57-00-63) pour toute question sur cette maison ou sur les démarches à suivre. Maisons France Confort Magny-le-Hongre vous accompagne à toutes les étapes de l'achat et dans tous vos projets immobiliers.
Annonce proposée par un Agent Commercial Partenaire.
Mentions légales
Terrain proposé par un partenaire foncier selon disponibilités et autorisation de publicité au prix de 59 000 €. Hors droit d'enregistrement et frais de notaire. Terrain + Maison proposés au prix de 219 000 € (Hors branchements et raccordements, papiers peints, peintures, revêtement de sol dans les chambres. Tarif modifiable sans préavis). Etiquette énergie : A. Différents modèles disponibles pour ce terrain. Assurances et garanties du constructeur (RC professionnelle, décennale, dommage ouvrage, garantie de remboursement de l'acompte, livraison à prix et délai convenu) : https://www.maisons-france-confort.fr/mentions-legales/. HEXAOM Services est enregistré auprès de l'ORIAS en tant que Courtier en financement, Niveau 1, sous le numéro 14001345.Agence Maisons France Confort de Magny-le-Hongre (77700)
- Téléphone :
- 01 84 80 92 96
- Adressse :
- 11 rue de Courtalin
77700 Magny-le-Hongre, France
