Maison neuve à 
  Maisons
 (14400)  Référence :
 JS2322565_1 
Prix du projet : Maison avec Terrain
prix 256 000 €
- 5 pièces
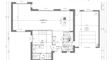
- 3 chambres
- Surface maison 110 m2
Bayeux : maison de 5 pièces (110 m²) à vendre
MAISON 5 PIÈCES NEUVE - PROCHE DE CAEN
À 9 km de la Manche et à 26 km de Caen, votre agence Maisons France Confort Bayeux est heureuse de vous proposer à vendre à Bayeux (14400), cette maison de 5 pièces de plain-pied de 110 m². Son intérieur est composé de trois chambres, d'une cuisine et de deux salles de bains.
Le terrain de cette maison est de 301 m².
La maison est neuve.
Il y a des établissements scolaires de tous niveaux à moins de 10 minutes à pied, tout comme une structure d'accueil pour les tout-petits. Côté transports en commun, on trouve la gare Bayeux dans les alentours. Il y a un accès à la nationale N13 à 3 km. Il y a une bibliothèque, des commerces, des boulangeries, un supermarché, une supérette et un bureau de poste à quelques minutes du bien. 2 marchés animent les environs.
Elle est proposée à l'achat pour 256 000 €.
N'hésitez pas à prendre contact avec notre agence (HUE Emilie : 06-29-81-46-66) pour tout renseignement sur cette maison, sur les modalités de vente et sur les démarches à suivre. Maisons France Confort Bayeux vous accompagne dans tous vos projets immobiliers et à toutes les étapes de l'achat.
Annonce proposée par un Agent Commercial Partenaire.
Mentions légales
Terrain proposé par un partenaire foncier selon disponibilités et autorisation de publicité au prix de 56 000 €. Hors droit d'enregistrement et frais de notaire. Maison proposée, avec un contrat de construction de maison individuelle, dans le cadre de la loi du 19/12/1990, au prix de 200 000 € (Hors branchements et raccordements, papiers peints, peintures, revêtement de sol dans les chambres, qui sont chiffrés dans les travaux qui restent à charge du client. Tarif modifiable sans préavis). Étiquette énergie : A. Différents modèles disponibles pour ce terrain. Assurances et garanties du constructeur comprises (RC professionnelle, décennale, dommage ouvrage).Agence Maisons France Confort de Bayeux (14400)
- Téléphone :
- 02 31 51 20 91
- Adressse :
-  2, rue Saint Loup
 14400 Bayeux, France
 
  
  
  
  
 