Maison neuve à 
  Maisons
 (14400)  Référence :
 JS2322565_2 
Prix du projet : Maison avec Terrain
prix 256 000 €
- 5 pièces
- 3 chambres
- Surface maison 110 m2
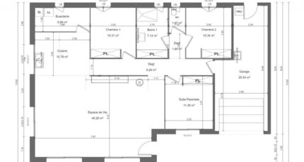
VENTE d'une maison de 5 pièces (110 m²) à Bayeux
PROCHE DE CAEN - MAISON 5 PIÈCES NEUVE
À vendre à 9 km de la Manche et à deux pas de Caen, à Bayeux (14400), laissez vous charmer par cette maison de 5 pièces de plain-pied de 110 m². Conçue de plain-pied, elle offre trois chambres, une cuisine et une salle de bains.
Le terrain du bien est de 301 m².
Cette maison est neuve.
Il y a tous les types d'établissements scolaires (maternelle, élémentaire et secondaire) à moins de 10 minutes à pied, tout comme une structure d'accueil pour la petite enfance. Côté transports, on trouve la gare Bayeux juste à côté. Il y a un accès à la nationale N13 à 3 km. Il y a une bibliothèque, des commerces, des boulangeries, un supermarché, une supérette et des boucheries-charcuteries à proximité. 2 marchés animent le quartier.
Son prix de vente est de 256 000 €.
Contactez Emilie HUE (06-29-81-46-66) pour plus de renseignements sur la maison, sur les modalités de vente ou sur les démarches à suivre. Maisons France Confort Bayeux vous accompagne à toutes les étapes de l'achat et dans tous vos projets immobiliers.
Annonce proposée par un Agent Commercial Partenaire.
Mentions légales
Terrain proposé par un partenaire foncier selon disponibilités et autorisation de publicité au prix de 56 000 €. Hors droit d'enregistrement et frais de notaire. Maison proposée, avec un contrat de construction de maison individuelle, dans le cadre de la loi du 19/12/1990, au prix de 200 000 € (Hors branchements et raccordements, papiers peints, peintures, revêtement de sol dans les chambres, qui sont chiffrés dans les travaux qui restent à charge du client. Tarif modifiable sans préavis). Étiquette énergie : A. Différents modèles disponibles pour ce terrain. Assurances et garanties du constructeur comprises (RC professionnelle, décennale, dommage ouvrage).Agence Maisons France Confort de Bayeux (14400)
- Téléphone :
- 02 31 51 20 91
- Adressse :
-  2, rue Saint Loup
 14400 Bayeux, France
 
  
  
  
  
 