Maison neuve à
Mallemort (13370) Référence : JCR2487260_2

Prix du projet : Maison avec Terrain

prix 282 000 €

  • 4 pièces
  • 3 chambres
  • Surface maison 80 m2

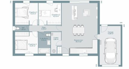
Mallemort dernière opportunité, Maisons France Confort et son partenaire foncier vous propose cette parcelle constructible de 350 m² situé dans un petit lotissement et entièrement viabilisé. À quelques kilomètres d'Aix-en-Provence, nous vous présentons cette maison de 4 pièces de plain-pied de 80 m² et de 350 m² de terrain à Mallemort (13370). Ce projet éligible aux prêt à taux zéro selon votre situation familiale.
Elle comporte trois chambres, une cuisine, un grand séjour et deux salles de bains, un garage en option.
Ce projet vous permettra de construire votre villa à proximité de toutes les commodités pour votre famille: école primaire, équipements sportifs, centre commercial et axe routier. A 22 mn de Salon de Provence et 32km d'Aix en Provence.
Projet maison + terrain à partir de 282 000 €, hors frais et adaptations.
Contactez notre agence de Salon de Provence au O4 90 56 69 36 ou O6 28 31 68 08 pour toute question sur la maison ou sur les démarches à suivre. Donnez vie à vos projets immobiliers avec Maisons France Confort Salon-de-Provence. Nous proposons aussi des projets de construction sur Mouriès 13890, Maussane-les-Alpilles 13520, Eyguières 13430, Salon de Provence 13300, Sénas 13560, Mallemort 13370, Pélissanne 13330 et de nombreuses autres villes et villages.

Mentions légales

Terrain proposé par un partenaire foncier selon disponibilités et autorisation de publicité au prix de 154 000 €. Hors droit d'enregistrement et frais de notaire. Terrain + Maison proposés au prix de 282 000 €. Tarif modifiable sans préavis. Etiquette énergie : A. Différents modèles disponibles pour ce terrain. Assurances et garanties du constructeur (RC professionnelle, décennale, dommage ouvrage, garantie de remboursement de l'acompte, livraison à prix et délai convenu) : https://www.maisons-france-confort.fr/mentions-legales/. HEXAOM Services est enregistré auprès de l'ORIAS en tant que Courtier en financement, Niveau 1, sous le numéro 14001345.

Contactez l'agence de Salon-de-Provence

04 90 56 69 36

    * Champs obligatoires

    Vos informations sont traitées par HEXAOM et transmises à un conseiller commercial qui vous contactera afin de répondre à votre demande. Les plans et images présentés sur notre site sont la propriété d’HEXAOM et ne peuvent pas être reproduits sans son accord. Pour retrouver notre politique de protection des données personnelles et exercer vos droits conformément à la « loi informatique et liberté » cliquez-ici.