Maison neuve à
Mandres-les-Roses (94520) Référence : IL2447090_1

Prix du projet : Maison avec Terrain

prix 365 900 €

  • 5 pièces
  • 3 chambres
  • Surface maison 80 m2

Mandres-les-Roses : maison T5 (80 m²) en vente
MAISON 5 PIÈCES NEUVE - PROCHE DE PARIS
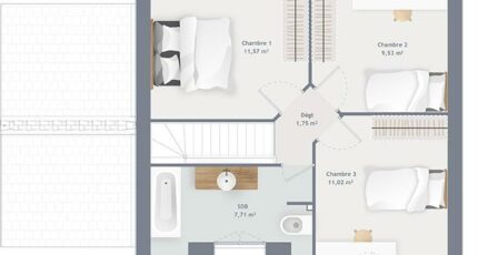
À vendre : à côté du RER D (station Boussy-Saint-Antoine, 30 min de Paris), nous sommes heureux de vous présenter cette maison de 5 pièces de 80 m² et de 413 m² de terrain à Mandres-les-Roses (94520). Son intérieur est composé de trois chambres, d'une cuisine et d'une salle de bains.
C'est une maison de 2 niveaux. Elle est neuve.
Il y a le Collège Simone Veil, l'École Maternelle la Ferme de Monsieur et l'École Élémentaire d'Application les Charmilles à moins de 10 minutes à pied. Niveau transports en commun, on trouve trois lignes de RER (D, A et C) ainsi que 11 gares à moins de 10 minutes en voiture. Il y a une bibliothèque, deux tennis, des commerces, deux boucheries-charcuteries, trois épiceries et un bureau de poste à proximité.
Elle est proposée à l'achat pour 365 900 €.
N'hésitez pas à prendre contact avec notre agence (LASLEDJ Ishane : 06-68-91-18-74) pour tout renseignement sur la maison.

Annonce proposée par un Agent Commercial Partenaire.

Mentions légales

Terrain proposé par un partenaire foncier selon disponibilités et autorisation de publicité au prix de 175 000 €. Hors droit d'enregistrement et frais de notaire. Terrain + Maison proposés au prix de 365 900 € (Hors branchements et raccordements, papiers peints, peintures, revêtement de sol dans les chambres. Tarif modifiable sans préavis). Etiquette énergie : A. Différents modèles disponibles pour ce terrain. Assurances et garanties du constructeur (RC professionnelle, décennale, dommage ouvrage, garantie de remboursement de l'acompte, livraison à prix et délai convenu) : https://www.maisons-france-confort.fr/mentions-legales/. HEXAOM Services est enregistré auprès de l'ORIAS en tant que Courtier en financement, Niveau 1, sous le numéro 14001345.

Contactez l'agence de Mareuil-lès-Meaux

01 60 09 28 30

    * Champs obligatoires

    Vos informations sont traitées par HEXAOM et transmises à un conseiller commercial qui vous contactera afin de répondre à votre demande. Les plans et images présentés sur notre site sont la propriété d’HEXAOM et ne peuvent pas être reproduits sans son accord. Pour retrouver notre politique de protection des données personnelles et exercer vos droits conformément à la « loi informatique et liberté » cliquez-ici.