Maison neuve à
Mandres-les-Roses
(94520) Référence :
AD2472461_4
Prix du projet : Maison avec Terrain
prix 399 800 €
- 5 pièces
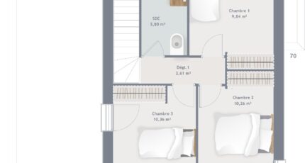
- 3 chambres
- Surface maison 90 m2
Mandres-les-Roses : maison T5 (90 m²) en vente
EMPLACEMENT PRIVILÉGIÉ - MAISON 5 PIÈCES NEUVE
En vente : proche de la station Boussy-Saint-Antoine du RER D (30 min de Paris), votre agence Maisons France Confort Nemours est heureuse de vous proposer cette maison de 5 pièces de 90 m² et de 413 m² de terrain bénéficiant d'un emplacement d'exception dans Mandres-les-Roses (94520). Son intérieur propose trois chambres, une cuisine et une salle de bains.
Cette maison compte 2 niveaux. Elle est neuve.
Cette maison se situe dans un quartier convoité. On trouve le Collège Simone Veil, l'École Maternelle la Ferme de Monsieur et l'École Élémentaire d'Application les Charmilles à moins de 10 minutes à pied. Niveau transports, il y a les lignes de RER D, A et C ainsi que 11 gares à moins de 10 minutes en voiture. On trouve une bibliothèque, deux tennis, des commerces, deux boucheries-charcuteries, un bureau de poste et trois épiceries dans les environs.
Son prix de vente est de 399 800 €.
N'hésitez pas à prendre contact avec Anne DELOHEN (06-30-93-26-67) pour toute question sur la maison ou sur les démarches à suivre.
Annonce proposée par un Agent Commercial Partenaire.
Mentions légales
Terrain proposé par un partenaire foncier selon disponibilités et autorisation de publicité au prix de 175 000 €. Hors droit d'enregistrement et frais de notaire. Terrain + Maison proposés au prix de 399 800 € (Hors branchements et raccordements, papiers peints, peintures, revêtement de sol dans les chambres. Tarif modifiable sans préavis). Etiquette énergie : A. Différents modèles disponibles pour ce terrain. Assurances et garanties du constructeur (RC professionnelle, décennale, dommage ouvrage, garantie de remboursement de l'acompte, livraison à prix et délai convenu) : https://www.maisons-france-confort.fr/mentions-legales/. HEXAOM Services est enregistré auprès de l'ORIAS en tant que Courtier en financement, Niveau 1, sous le numéro 14001345.Agence Maisons France Confort de Nemours (77140)
- Téléphone :
- 01 64 28 58 32
- Adressse :
- 16 Avenue Carnot
77140 Nemours, France
