Maison neuve à
Marboz (01851) Référence : SG2612_1

Prix du projet : Maison avec Terrain

prix 344 500 €

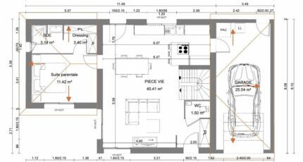
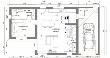
  • 5 pièces
  • 4 chambres
  • Surface maison 108 m2

Marboz : maison F5 (108 m²) à vendre
PROCHE DE BOURG-EN-BRESSE - MAISON 5 PIÈCES NEUVE
À deux pas de Bourg-en-Bresse, Maisons France Confort Bourg-en-Bresse vous propose cette maison de 5 pièces de 108 m² à Marboz (01851). Son intérieur inclut quatre chambres, une cuisine et deux salles de bains.
Le terrain du bien s'étend sur 728 m².
C'est une maison de 2 niveaux. Elle est neuve.
Il y a une école primaire dans le quartier. Les autoroutes A39 et A40 sont accessibles à moins de 12 km. On trouve une bibliothèque, quatre commerces, trois boulangeries, une épicerie et une supérette à proximité du logement.
Son prix de vente est de 344 500 €.
Prenez contact avec notre agence (Sébastien GABRILLARGUES : 06-81-77-73-67) pour plus d'informations sur cette maison ou sur les démarches à suivre. Donnez vie à vos projets immobiliers avec Maisons France Confort Bourg-en-Bresse.

Annonce proposée par un Agent Commercial Partenaire.

Mentions légales

Terrain proposé par un partenaire foncier selon disponibilités et autorisation de publicité au prix de 82 000 €. Hors droit d'enregistrement et frais de notaire. Terrain + Maison proposés au prix de 344 500 € (Hors branchements et raccordements, papiers peints, peintures, revêtement de sol dans les chambres. Tarif modifiable sans préavis). Etiquette énergie : A. Différents modèles disponibles pour ce terrain. Assurances et garanties du constructeur (RC professionnelle, décennale, dommage ouvrage, garantie de remboursement de l'acompte, livraison à prix et délai convenu) : https://www.maisons-france-confort.fr/mentions-legales/. HEXAOM Services est enregistré auprès de l'ORIAS en tant que Courtier en financement, Niveau 1, sous le numéro 14001345.

Contactez l'agence de Bourg-en-Bresse

04 74 14 04 47

    * Champs obligatoires

    Vos informations sont traitées par HEXAOM et transmises à un conseiller commercial qui vous contactera afin de répondre à votre demande. Les plans et images présentés sur notre site sont la propriété d’HEXAOM et ne peuvent pas être reproduits sans son accord. Pour retrouver notre politique de protection des données personnelles et exercer vos droits conformément à la « loi informatique et liberté » cliquez-ici.