Maison neuve à
Marcilly (77139) Référence : DC2444120_1

Prix du projet : Maison avec Terrain

prix 380 000 €

  • 6 pièces
  • 4 chambres
  • Surface maison 105 m2

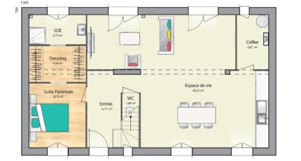
VENTE d'une maison de 6 pièces (105 m²) à Marcilly
MAISON 6 PIÈCES NEUVE - PROCHE D'AULNAY-SOUS-BOIS
À quelques minutes du Transilien P (gare de Meaux, 25 min de Paris), à vendre à Marcilly (77139), Maisons France Confort Melun vous propose cette maison de 6 pièces de 105 m² et de 978 m² de terrain. Son intérieur dispose de quatre chambres, d'une cuisine et de deux salles de bains.
C'est une maison de 2 niveaux. Elle est neuve.
Une école élémentaire est implantée dans le quartier. Niveau transports en commun, il y a la gare Meaux à moins de 10 minutes en voiture.
Son prix de vente est de 380 000 €.
Contactez vote commercial réf F.J (tél : 01-64-14-43-30) pour toute information sur la propriété, sur les modalités de vente ou sur les démarches à suivre. Faites de vos projets immobiliers une réalité avec Maisons France Confort Melun.

Annonce proposée par un Agent Commercial Partenaire.

Mentions légales

Terrain proposé par un partenaire foncier selon disponibilités et autorisation de publicité au prix de 145 000 €. Hors droit d'enregistrement et frais de notaire. Terrain + Maison proposés au prix de 380 000 € (Hors branchements et raccordements, papiers peints, peintures, revêtement de sol dans les chambres. Tarif modifiable sans préavis). Etiquette énergie : A. Différents modèles disponibles pour ce terrain. Assurances et garanties du constructeur (RC professionnelle, décennale, dommage ouvrage, garantie de remboursement de l'acompte, livraison à prix et délai convenu) : https://www.maisons-france-confort.fr/mentions-legales/. HEXAOM Services est enregistré auprès de l'ORIAS en tant que Courtier en financement, Niveau 1, sous le numéro 14001345.

Contactez l'agence de Melun

01 64 14 43 20

    * Champs obligatoires

    Vos informations sont traitées par HEXAOM et transmises à un conseiller commercial qui vous contactera afin de répondre à votre demande. Les plans et images présentés sur notre site sont la propriété d’HEXAOM et ne peuvent pas être reproduits sans son accord. Pour retrouver notre politique de protection des données personnelles et exercer vos droits conformément à la « loi informatique et liberté » cliquez-ici.