Maison neuve à
Marmont-Pachas (47220) Référence : BV2426820_2

Prix du projet : Maison avec Terrain

prix 292 596 €

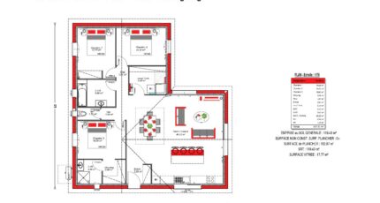
  • 4 pièces
  • 3 chambres
  • Surface maison 100 m2

Nous vous proposons une maison en L de 3 chambres dont une suite parentale, cuisine ouverte sur séjour. Grandes ouvertures vers le jardins. Maison aux normes RE2020, domotique, climatisation...
Modèle de maison modifiable à votre convenance.

Le tout proposé sur un terrain roche Layrac sur la Commune de Marmont Pachas dans un cadre verdoyant et ouvert sur son environnement. A mi chemin entre Laplume, Layrac, et Astaffort, la Commune est desservie par plusieurs routes départementales permettant de rejoindre en moins de 20 minutes le centre ville d'Agen, les zones industrielles et économiques de Estillac et Saint Colombe en Brulhois.
Terrain de 847m², bonne exposition, au calme.

Contactez Brice VOGLER (tél : O6-10-27-50-13) pour plus de renseignements sur la maison ou sur les démarches à suivre. Concrétisez vos projets immobiliers avec Alpha Constructions Boé.

Mentions légales

Terrain proposé par un partenaire foncier selon disponibilité dans le cadre d’un projet de construction avec Alpha Constructions. Les descriptions, photographies, surfaces et prix illustrant l’annonce sont fournies à titre indicatif et ne sont pas contractuels. Non soumis au DPE. Différents modèles disponibles.

Contactez l'agence de Boé

05 53 86 12 05

    * Champs obligatoires

    Vos informations sont traitées par HEXAOM et transmises à un conseiller commercial qui vous contactera afin de répondre à votre demande. Les plans et images présentés sur notre site sont la propriété d’HEXAOM et ne peuvent pas être reproduits sans son accord. Pour retrouver notre politique de protection des données personnelles et exercer vos droits conformément à la « loi informatique et liberté » cliquez-ici.