Maison neuve à
Marolles-sur-Seine
(77130) Référence :
CY2465640_1
Prix du projet : Maison avec Terrain
prix 272 000 €
- 5 pièces
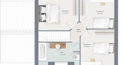
- 3 chambres
- Surface maison 80 m2
VENTE : maison F5 (80 m²) à Marolles-sur-Seine
IDÉALEMENT SITUÉE - MAISON 5 PIÈCES NEUVE
À vendre : proche du Transilien R (gare de Montereau, 60 min de Paris), Maisons France Confort Mareuil-lès-Meaux vous propose cette maison de 5 pièces de 80 m² idéalement située dans Marolles-sur-Seine (77130).
C'est une maison de 2 niveaux. Elle inclut trois chambres, une cuisine et une salle de bains. Cette maison est neuve.
Le terrain de la propriété s'étend sur 475 m².
La maison se situe dans un secteur convoité. Il y a des établissements scolaires primaires à moins de 10 minutes à pied et, comme l'École Maternelle Jean Dumoulin Neuf. Côté transports en commun, on trouve trois gares (Villeneuve-la-Guyard, Montereau et Champigny sur Yonne) à moins de 10 minutes en voiture. Il y a un tennis, un commerce, une épicerie et un bureau de poste à proximité de la maison.
Elle est proposée à l'achat pour 272 000 €.
Contactez notre agence (Cedric YAHIAOUI : 06-66-57-00-63) pour obtenir de plus amples informations sur la maison ou sur les modalités de vente. Faites de vos projets immobiliers une réalité avec Maisons France Confort Mareuil-lès-Meaux.
Annonce proposée par un Agent Commercial Partenaire.
Mentions légales
Terrain proposé par un partenaire foncier selon disponibilités et autorisation de publicité au prix de 82 000 €. Hors droit d'enregistrement et frais de notaire. Terrain + Maison proposés au prix de 272 000 € (Hors branchements et raccordements, papiers peints, peintures, revêtement de sol dans les chambres. Tarif modifiable sans préavis). Etiquette énergie : A. Différents modèles disponibles pour ce terrain. Assurances et garanties du constructeur (RC professionnelle, décennale, dommage ouvrage, garantie de remboursement de l'acompte, livraison à prix et délai convenu) : https://www.maisons-france-confort.fr/mentions-legales/. HEXAOM Services est enregistré auprès de l'ORIAS en tant que Courtier en financement, Niveau 1, sous le numéro 14001345.Agence Maisons France Confort de Mareuil-lès-Meaux (77100)
- Téléphone :
- 01 60 09 28 30
- Adressse :
- Domexpo Est Village La Hayette
77100 Mareuil-lès-Meaux, France
