Maison neuve à
Marolles-sur-Seine (77130) Référence : CY2465926_1

Prix du projet : Maison avec Terrain

prix 265 000 €

  • 5 pièces
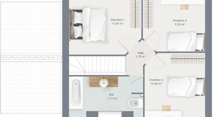
  • 3 chambres
  • Surface maison 80 m2

VENTE : maison T5 (80 m²) à Marolles-sur-Seine
IDÉALEMENT SITUÉE - MAISON 5 PIÈCES NEUVE
À vendre : à côté de la gare de Montereau (Paris à 60 min par le Transilien R), votre agence Maisons France Confort Mareuil-lès-Meaux est heureuse de vous proposer cette maison de 5 pièces de 80 m² et de 370 m² de terrain idéalement située dans Marolles-sur-Seine (77130). Son intérieur comporte trois chambres, une cuisine et une salle de bains.
Cette maison compte 2 niveaux. Elle est neuve.
La maison est située dans un secteur recherché. Des établissements scolaires primaires se trouvent à moins de 10 minutes à pied, tout comme, comme l'École Maternelle Jean Dumoulin Neuf. Niveau transports en commun, il y a les gares Villeneuve-la-Guyard, Montereau et Champigny sur Yonne à moins de 10 minutes en voiture. On trouve un tennis, un commerce, une épicerie et un bureau de poste à proximité de la maison.
Elle est proposée à l'achat pour 265 000 €.
Contactez notre agence (YAHIAOUI Cedric : 06-66-57-00-63) pour toute information sur la maison, sur les modalités de vente ou sur les démarches à suivre. Faites de vos projets immobiliers une réalité avec Maisons France Confort Mareuil-lès-Meaux.

Annonce proposée par un Agent Commercial Partenaire.

Mentions légales

Terrain proposé par un partenaire foncier selon disponibilités et autorisation de publicité au prix de 75 000 €. Hors droit d'enregistrement et frais de notaire. Terrain + Maison proposés au prix de 265 000 € (Hors branchements et raccordements, papiers peints, peintures, revêtement de sol dans les chambres. Tarif modifiable sans préavis). Etiquette énergie : A. Différents modèles disponibles pour ce terrain. Assurances et garanties du constructeur (RC professionnelle, décennale, dommage ouvrage, garantie de remboursement de l'acompte, livraison à prix et délai convenu) : https://www.maisons-france-confort.fr/mentions-legales/. HEXAOM Services est enregistré auprès de l'ORIAS en tant que Courtier en financement, Niveau 1, sous le numéro 14001345.

Contactez l'agence de Mareuil-lès-Meaux

01 60 09 28 30

    * Champs obligatoires

    Vos informations sont traitées par HEXAOM et transmises à un conseiller commercial qui vous contactera afin de répondre à votre demande. Les plans et images présentés sur notre site sont la propriété d’HEXAOM et ne peuvent pas être reproduits sans son accord. Pour retrouver notre politique de protection des données personnelles et exercer vos droits conformément à la « loi informatique et liberté » cliquez-ici.