Maison neuve à
Marolles-sur-Seine
(77130) Référence :
CY2466027_1
Prix du projet : Maison avec Terrain
prix 265 000 €
- 5 pièces
- 3 chambres
- Surface maison 80 m2
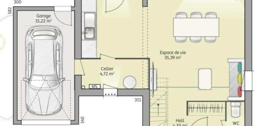
VENTE d'une maison de 5 pièces (80 m²) à Marolles-sur-Seine
IDÉALEMENT SITUÉE - MAISON 5 PIÈCES NEUVE
En vente : à deux pas du Transilien R (gare de Montereau, 60 min de Paris), nous sommes heureux de vous proposer, idéalement située dans Marolles-sur-Seine (77130), cette maison de 5 pièces de 80 m². Son intérieur offre trois chambres, une cuisine et une salle de bains.
Le terrain de cette maison s'étend sur 369 m².
C'est une maison de 2 niveaux. Elle est neuve.
Cette maison se situe dans un secteur prisé. Des écoles maternelles et élémentaires sont implantées à moins de 10 minutes à pied, tout comme dont l'École Maternelle Jean Dumoulin Neuf. Niveau transports, il y a trois gares (Villeneuve-la-Guyard, Montereau et Champigny sur Yonne) à moins de 10 minutes en voiture. On trouve un tennis, un commerce, un bureau de poste et une épicerie à quelques minutes à peine.
Son prix de vente est de 265 000 €.
Contactez notre agence (Cedric YAHIAOUI : 06-66-57-00-63) pour toute question sur la propriété, sur les démarches à suivre ou sur les modalités de vente. Maisons France Confort Mareuil-lès-Meaux est là pour vous accompagner dans tous vos projets immobiliers.
Annonce proposée par un Agent Commercial Partenaire.
Mentions légales
Terrain proposé par un partenaire foncier selon disponibilités et autorisation de publicité au prix de 75 000 €. Hors droit d'enregistrement et frais de notaire. Terrain + Maison proposés au prix de 265 000 € (Hors branchements et raccordements, papiers peints, peintures, revêtement de sol dans les chambres. Tarif modifiable sans préavis). Etiquette énergie : A. Différents modèles disponibles pour ce terrain. Assurances et garanties du constructeur (RC professionnelle, décennale, dommage ouvrage, garantie de remboursement de l'acompte, livraison à prix et délai convenu) : https://www.maisons-france-confort.fr/mentions-legales/. HEXAOM Services est enregistré auprès de l'ORIAS en tant que Courtier en financement, Niveau 1, sous le numéro 14001345.Agence Maisons France Confort de Mareuil-lès-Meaux (77100)
- Téléphone :
- 01 60 09 28 30
- Adressse :
- Domexpo Est Village La Hayette
77100 Mareuil-lès-Meaux, France
