Maison neuve à
Marolles-sur-Seine (77130) Référence : CY2466104_1

Prix du projet : Maison avec Terrain

prix 277 000 €

  • 5 pièces
  • 3 chambres
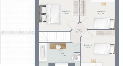
  • Surface maison 80 m2

VENTE d'une maison de 5 pièces (80 m²) à Marolles-sur-Seine
IDÉALEMENT SITUÉE - MAISON 5 PIÈCES NEUVE
Au pied du Transilien R (gare de Montereau, 60 min de Paris), en vente idéalement située dans Marolles-sur-Seine (77130), votre agence Maisons France Confort Mareuil-lès-Meaux est heureuse de vous proposer cette maison de 5 pièces de 80 m² et de 544 m² de terrain.
Cette maison comporte 2 niveaux. Son intérieur propose trois chambres, une cuisine et une salle de bains. La maison est neuve.
Cette maison est située dans un secteur convoité. On trouve des écoles maternelles et élémentaires à moins de 10 minutes à pied et dont l'École Maternelle Jean Dumoulin Neuf. Niveau transports en commun, il y a trois gares (Villeneuve-la-Guyard, Montereau et Champigny sur Yonne) à moins de 10 minutes en voiture. Il y a un tennis, un commerce, une épicerie et un bureau de poste à proximité.
Elle est à vendre pour la somme de 277 000 €.
Prenez contact avec Cedric YAHIAOUI (tél : 06-66-57-00-63) pour tout renseignement sur la maison, sur les modalités de vente ou sur les démarches à suivre. Donnez vie à vos projets immobiliers avec Maisons France Confort Mareuil-lès-Meaux.

Annonce proposée par un Agent Commercial Partenaire.

Mentions légales

Terrain proposé par un partenaire foncier selon disponibilités et autorisation de publicité au prix de 87 000 €. Hors droit d'enregistrement et frais de notaire. Terrain + Maison proposés au prix de 277 000 € (Hors branchements et raccordements, papiers peints, peintures, revêtement de sol dans les chambres. Tarif modifiable sans préavis). Etiquette énergie : A. Différents modèles disponibles pour ce terrain. Assurances et garanties du constructeur (RC professionnelle, décennale, dommage ouvrage, garantie de remboursement de l'acompte, livraison à prix et délai convenu) : https://www.maisons-france-confort.fr/mentions-legales/. HEXAOM Services est enregistré auprès de l'ORIAS en tant que Courtier en financement, Niveau 1, sous le numéro 14001345.

Contactez l'agence de Mareuil-lès-Meaux

01 60 09 28 30

    * Champs obligatoires

    Vos informations sont traitées par HEXAOM et transmises à un conseiller commercial qui vous contactera afin de répondre à votre demande. Les plans et images présentés sur notre site sont la propriété d’HEXAOM et ne peuvent pas être reproduits sans son accord. Pour retrouver notre politique de protection des données personnelles et exercer vos droits conformément à la « loi informatique et liberté » cliquez-ici.