Maison neuve à
Marsalès (24540) Référence : JT2403037-4_2

Prix du projet : Maison avec Terrain

prix 237 400 €

  • 5 pièces
  • 4 chambres
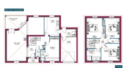
  • Surface maison 130 m2

VENTE d'une maison de 5 pièces (130 m²) à Marsalès
MAISON 5 PIÈCES NEUVE
Maisons de la Côte Atlantique Bergerac vous présente cette maison de 5 pièces de 130 m² et de 2 814 m² de terrain à Marsalès (24540). Elle inclut quatre chambres, une cuisine et une salle de bains.
Cette maison compte 2 niveaux. Elle est neuve.
Des écoles primaires sont implantées à proximité. Il y a deux tennis, trois bibliothèques, un bassin de natation, des commerces, une boucherie-charcuterie, deux supérettes, un bureau de poste et trois épiceries dans les environs. Ne manquez pas le marché Place centrale tous les jeudis matin.
Son prix de vente est de 237 400 €.
Prenez contact avec notre agence (THIELENS Julie : o7 7o 24 26 o3) pour tout renseignement sur la maison, sur les modalités de vente ou sur les démarches à suivre. Faites de vos projets immobiliers une réalité avec Maisons de la Côte Atlantique Bergerac.

Mentions légales

Idée de réalisation en modèle prêt à décorer sur l'un de nos terrains partenaires, sous réserve de disponibilités. Voir détails en agence.

Contactez l'agence de Bergerac

05 53 22 30 10

    * Champs obligatoires

    Vos informations sont traitées par HEXAOM et transmises à un conseiller commercial qui vous contactera afin de répondre à votre demande. Les plans et images présentés sur notre site sont la propriété d’HEXAOM et ne peuvent pas être reproduits sans son accord. Pour retrouver notre politique de protection des données personnelles et exercer vos droits conformément à la « loi informatique et liberté » cliquez-ici.