Maison neuve à
Marseillan (34340) Référence : MM2322983_5

Prix du projet : Maison avec Terrain

prix 350 000 €

  • 6 pièces
  • 4 chambres
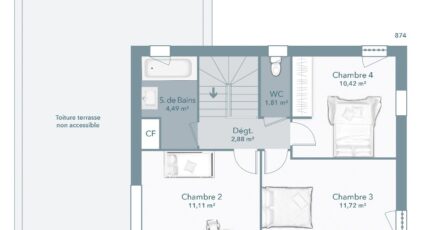
  • Surface maison 110 m2

VENTE d'une maison de 6 pièces (110 m²) à Marseillan
MAISON 6 PIÈCES NEUVE - PROCHE DE BÉZIERS
À vendre : localisée sur le littoral méditerranéen et à quelques kilomètres de Béziers, Maisons France Confort Clermont-l'Hérault vous présente à Marseillan (34340), cette maison de 6 pièces de 110 m² et de 212 m² de terrain.
C'est une maison de 2 niveaux. Son intérieur compte quatre chambres, une cuisine et deux salles de bains. La maison est neuve.
L'École Maternelle Marie Fayet et l'École Élémentaire d'Bardou A Maffre de Baugé sont implantées à moins de 10 minutes à pied, tout comme une crèche. Niveau transports, on trouve les gares Marseillan Plage, Agde et Vias à moins de 10 minutes en voiture. Il y a un accès à l'autoroute A9 à 9 km. Il y a des boulangeries, des commerces, un supermarché, quatre épiceries et un bureau de poste à quelques minutes du bien. Enfin, le marché Centre-Ville a lieu chaque mardi matin.
Elle est à vendre pour la somme de 350 000 €.
Prenez contact avec notre agence (MARTINEZ Mickaël : 06-16-87-37-15) pour obtenir de plus amples renseignements sur la maison, sur les modalités de vente ou sur les démarches à suivre. Maisons France Confort Clermont-l'Hérault vous accompagne dans tous vos projets immobiliers et à toutes les étapes de votre projet.

Mentions légales

Terrain proposé par un partenaire foncier selon disponibilités et autorisation de publicité au prix de 102 000 €. Hors droit d'enregistrement et frais de notaire. Terrain + Maison proposés au prix de 248 000 € (Hors branchements et raccordements, papiers peints, peintures, revêtement de sol dans les chambres. Tarif modifiable sans préavis). Etiquette énergie : A. Différents modèles disponibles pour ce terrain. Assurances et garanties du constructeur (RC professionnelle, décennale, dommage ouvrage, garantie de remboursement de l'acompte, livraison à prix et délai convenu) : https://www.maisons-france-confort.fr/mentions-legales/. HEXAOM Services est enregistré auprès de l'ORIAS en tant que Courtier en financement, Niveau 1, sous le numéro 14001345.

Contactez l'agence de Clermont-l'Hérault

04 67 96 00 74

    * Champs obligatoires

    Vos informations sont traitées par HEXAOM et transmises à un conseiller commercial qui vous contactera afin de répondre à votre demande. Les plans et images présentés sur notre site sont la propriété d’HEXAOM et ne peuvent pas être reproduits sans son accord. Pour retrouver notre politique de protection des données personnelles et exercer vos droits conformément à la « loi informatique et liberté » cliquez-ici.