Maison neuve à
Marsillargues
(34590) Référence :
LR2403647_1
Prix du projet : Maison avec Terrain
prix 468 900 €
- 6 pièces
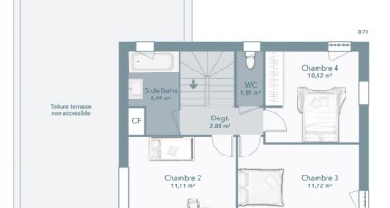
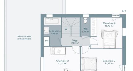
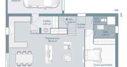
- 4 chambres
- Surface maison 110 m2
Maison T6 (110 m²) en vente à Marsillargues
IDÉALEMENT SITUÉE - MAISON 6 PIÈCES NEUVE
À Marsillargues (34590), à 20 minutes de la grande motte et des portes de Nîmes, 25 minutes de Montpellier Odysseum, en vente idéalement située dans Marsillargues (34590), ayez le coup de coeur pour cette maison de 6 pièces de 110 m² sur 438 m² de terrain.
Cette maison compte 2 niveaux. Son intérieur inclut quatre chambres, une cuisine et deux salles de bains. Cette maison est neuve.
La maison est située dans un quartier convoité. Des écoles du primaire et du secondaire se trouvent à moins de 10 minutes en voiture, tout comme huit crèches à moins de 10 minutes à pied. Niveau transports en commun, il y a huit gares à moins de 10 minutes en voiture. L'autoroute A9 est accessible à 9 km. On trouve des bibliothèques, des tennis, des bassins de natation, un port de plaisance, des boulangeries, des supermarchés, des commerces, des poissonneries et des boucheries-charcuteries à proximité du logement. 4 marchés animent le quartier.
Elle est proposée à l'achat pour 468 900 €.
N'hésitez pas à prendre contact avec Lionel ROMERA (06-30-39-77-79) pour toute question sur la maison, sur les démarches à suivre ou sur les modalités de vente. Maisons France Confort Montpellier vous accompagne à toutes les étapes de l'achat et dans tous vos projets immobiliers.
Annonce proposée par un Agent Commercial Partenaire.
Mentions légales
Terrain proposé par un partenaire foncier selon disponibilités et autorisation de publicité au prix de 199 900 €. Hors droit d'enregistrement et frais de notaire. Terrain + Maison proposés au prix de 468 900 € (Hors branchements et raccordements, papiers peints, peintures, revêtement de sol dans les chambres. Tarif modifiable sans préavis). Etiquette énergie : A. Différents modèles disponibles pour ce terrain. Assurances et garanties du constructeur (RC professionnelle, décennale, dommage ouvrage, garantie de remboursement de l'acompte, livraison à prix et délai convenu) : https://www.maisons-france-confort.fr/mentions-legales/. HEXAOM Services est enregistré auprès de l'ORIAS en tant que Courtier en financement, Niveau 1, sous le numéro 14001345.Agence Maisons France Confort de Montpellier (34000)
- Téléphone :
- 04 67 64 85 11
- Adressse :
- 48, impasse Louis Ferdinand Herold
34000 Montpellier, France
